購買及設定模組化支架系統

模組化測試架系統支援 ITS 測試自動化,由塑膠盒 (透過電腦輔助設計 (CAD) 圖面以電腦數值控制 (CNC) 切割而成)、圖表平板電腦和受測裝置 (DUT) 組成。模組化支架系統包含基本支架和選用的延伸支架。模組化底座的圖表距離為 22 公分,可測試視角 60 度到 120 度的行動裝置相機。基本裝置可執行測試,並將 DUT 旋轉 90 度 (如圖 2 所示)。

長焦延伸支架支援測試具有長焦距的相機 (長焦相機)。遠距延伸支架會用螺栓固定在底座支架上,透過合格供應商購買時,可根據攝影機測試需求自訂長度。攝影機 ITS 支援最遠 100 公分的圖表距離。伸縮桿有兩種,分別是彈性伸縮桿和固定長度伸縮桿。彈性式測試架可讓您測試各種圖表距離,固定長度測試架則只能測試單一圖表距離。彈性遙控攝影機將於 2026 年 3 月推出。

模組化底座
Rev1.2

圖 1. 模組化基礎骨架。

Modular rev1.2
90deg

圖 2. 模組化底座支架旋轉 90 度。

Flexi-Tele
rig

圖 3. 我們兩家核准供應商提供的 Flexi-Tele 延長桿。

修訂記錄

下表說明模組化骨架系統的修訂記錄,並提供各版本製作檔案的下載連結。

日期 修訂版本 下載正式版檔案 變更記錄
2024 年 9 月 1.2 模組化基礎裝備 rev1.2
  • (2024 年 9 月) 修正正式版檔案錯誤
  • (2024 年 7 月) 初始版本

購買模組化支架系統

建議向下列合格供應商購買模組化支架系統、選購的遠距延伸支架,以及配件。

  • Byte Bridge Inc.
    美國:1502 Crocker Ave, Hayward, CA 94544-7037
    中國:上海市徐匯區中山西路 1600 號宏匯國際廣場 A 座 22 樓 06-08 室,200235
    www.bytebt.com
    androidpartner@bytebt.com
    美國:+1-510-373-8899
    中國:+86-400-8866-490

  • JFT CO LTD 捷富通科技有限公司 (原名 MYWAY DESIGN)
    中國:上海市閔行區吳涇鎮和艾路 22 弄 40 號 中國
    臺灣:4F., 臺灣新北市新莊區福營路 163 號 (郵遞區號:242)
    www.jftcoltd.com
    service@jfttec.com 或 its.sales@jfttec.com
    中國:+86-021-64909136
    臺灣:886-2-29089060

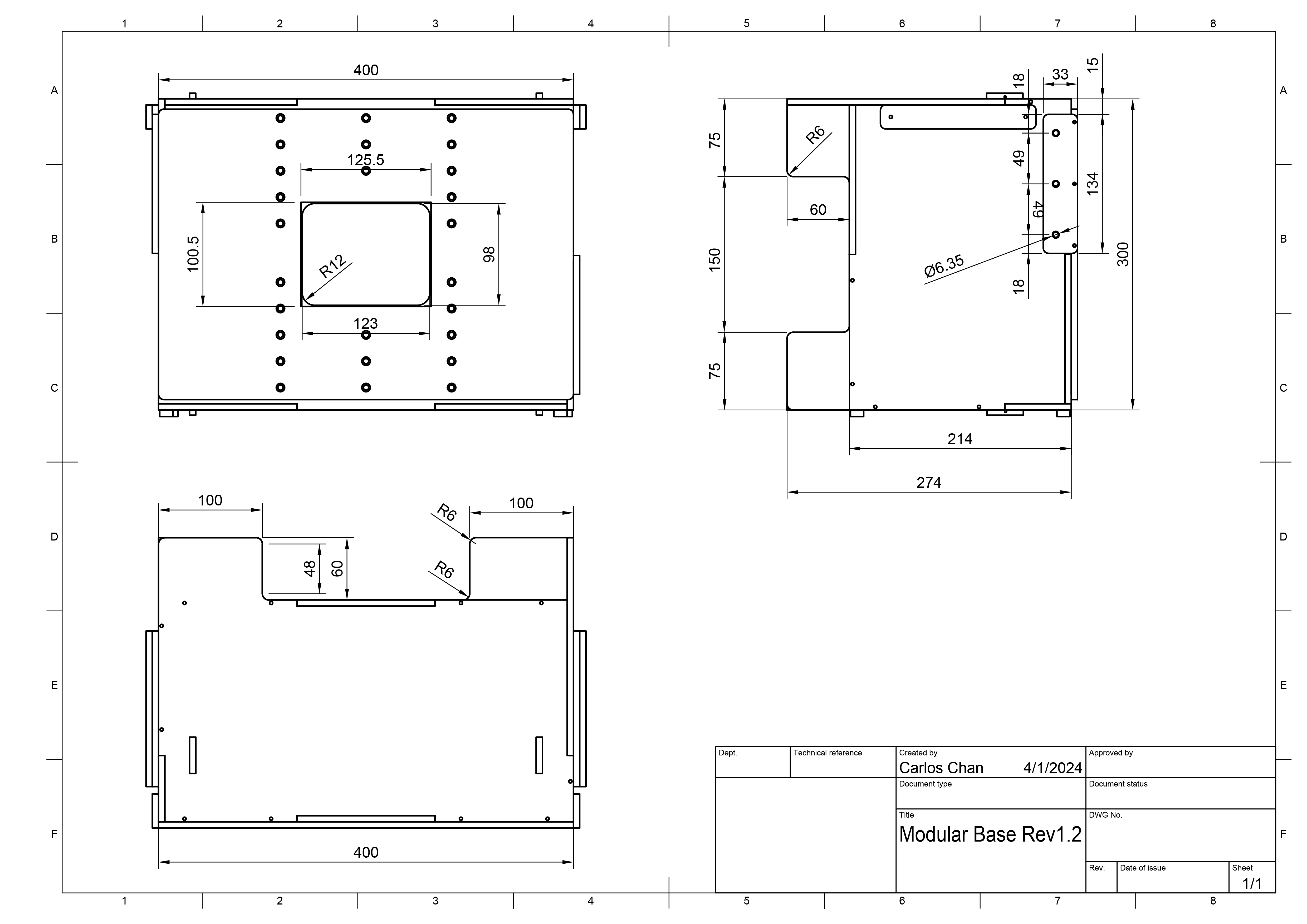
機械圖

以下是模組化底座的機械圖。

模組化底座的 CAD 圖

圖 4. 模組化底座的機械圖

設定基礎裝備

請按照下列步驟設定模組化基礎骨架。

  1. 向合格供應商購買模組化攝影機架系統。

  2. 請確認您已備妥下表中的所有元件 (如圖 4 所示)。

    元件 數量
    模組化基礎骨架 1
    手機支架 2
    平板電腦支架 1
    12V 電源供應器 (通過 UL 認證,至少 1A) 1
    光圈 1

    模組化底座 Rev1.2
項目

    圖 5. 模組化基礎裝備元件。

  3. 視設定而定,請確認您擁有下表中的必要配件 (如圖 5 所示)。這些配件可向合格供應商購買。

    產品 數量
    燈光控制器 (最多可控制 3 個燈具) 1
    照明控制器專用的 5V 電源供應器 1
    將燈具連接至模組化底座的 DC 桶式電纜 1
    筒狀接頭直流電源線轉接頭 (5.5 公釐 x 2.1 公釐轉 3.5 公釐 x 1.35 公釐) 1
    USB A 傳輸線對 USB 傳輸線 1
    摺疊式套件 (如果 DUT 是摺疊式裝置) 1

    模組化選用項目

    圖 6. 模組化基礎骨架的選用項目。

  4. 請採取下列任一做法,確保沒有漏光:

    1. 製作適合 DUT 攝影機模組的光圈,並確保沒有漏光 (如圖 6 所示)。孔徑可從提供的泡棉板上切割,或由合格供應商設定。如要確保圖形方向正確,後置鏡頭朝向裝置的 DUT 會逆時針旋轉 90°,前置鏡頭朝向裝置的 DUT 則會順時針旋轉 90°。請確認光圈設定正確無誤。

    模組化光圈定位 模組化光圈
    切割

    圖 7. 製作光圈,防止光線洩漏。

    1. 使用深色布幕遮蓋裝置,防止漏光,不需要開孔。(如圖 7 所示)。

    模組化窗簾

    圖 8. 使用布簾防止漏光。

  5. 使用尼龍螺栓和螺帽,將標準手機架或可摺疊手機架安裝到前置手機安裝面板上,並調整至適當高度,如圖 8 所示。

    安裝模組化光圈和支架

    圖 9.安裝光圈和手機支架。

  6. 使用尼龍螺栓和螺帽,將平板電腦支架安裝在平板電腦安裝面板上適當的高度。

  7. 如圖 9 所示,安裝螢幕平板電腦,並將平板電腦連線至主機。使用吸盤固定平板電腦。

    模組化平板電腦
安裝

    圖 10. 安裝平板電腦。

  8. 如要簡化螢幕上的操作,請先設定 DUT,再安裝 DUT。

  9. 掛接 DUT 並連線至主機。

  10. 對齊 DUT,讓攝影機模組中心對齊平板電腦中心 (或非常靠近平板電腦中心)。如要調整高度,請鬆開手機安裝螺栓,然後向上或向下滑動支架。對齊後,請用支架柱塞固定 DUT。

    模組化 DUT
安裝

    圖 11. 安裝 DUT。

  11. 如要供電給燈光,請將燈光電線從底座連接至下列其中一個裝置:

    1. 12V 電源供應器

    模組化 12V 連接

    圖 12. 燈具連接 12V 電源供應器。

    1. 燈光控制器 (可能需要轉接器)

    模組化控制器連線

    圖 13. 燈具已連線至照明控制器。

完成模組化底座設備的設定後,請設定主機和測試環境 (設定 CTS)。如為 config.yml 檔案,請使用下列設定:

  • chart\_distance = 22
  • lighting\_ch = [已連線的控制器通道],如果未使用照明控制器,則保留原樣。

Flexi-Tele 擴充裝置設定

如果你在 2026 年 3 月前購買模組化底座,可能需要進行小規模改造,才能搭配彈性延伸桿使用。這項修改作業可修正前板擋住 DUT 望遠鏡頭視野的問題,也能搭配固定長度的望遠擴充裝置使用。

請按照下列步驟改造模組化底座。

  1. 取下固定前板的四個頂部螺絲,以及底部的四個螺絲。

    取下模組化改裝套件的螺絲

    圖 14. 固定前板的螺絲。

  2. (選用) 將手機固定板以螺栓鎖上或黏到前板上,確保兩塊板子能一起取下。

    模組化改造螺栓板

    圖 15. 手機固定板和前板的螺栓。

  3. (選用) 如果設備的底部到頂部燈光電源線連接到前板,請使用電工膠帶或束帶支架將其移至側邊。

    模組化改造,重新配置電纜

    圖 16. 底部到頂部的電源線已移至側邊。

  4. 將模組化底座支架連接至彈性延伸支架。

示範影片

這部影片示範如何設定彈性遙控延伸桿:

固定長度伸縮式延伸桿的設備設定

請按照下列步驟設定選用的攝影機延伸支架。

  1. 向合格供應商購買模組化底座和長焦延伸底座。您可以使用製作檔案建構支架,但我們不建議這麼做,因為必須準確切割和組裝,才能確保延伸支架沒有合身問題。

  2. 確認您有可正常運作的模組化底座和延伸桿 (如圖 13 所示)。

    模組化電話

    圖 17. 模組化底座,附伸縮桿。

  3. 徒手拆下 6 個尼龍螺栓 (兩側各 3 個),取下手機固定面板。

    模組化螺栓
重點 拆除模組化螺栓 模組化前板
關閉

    圖 18. 用手移除醒目顯示區域的 6 個尼龍螺栓。

  4. 將底座和遠距擴充裝置放在測試執行的表面上。為避免安裝點承受壓力,我們不建議移動組裝好的攝影機。

  5. 將延長支架就位,使延長支架凸片上的 6 個凹槽與底座支架上的 6 個孔洞對齊。

    模組化對齊
分頁

    圖 19. 將凹槽與孔洞對齊。

  6. 安裝 6 個螺栓,將延長支架固定到底座支架上。安裝螺絲時,請輕輕將 2 個支架推在一起,確保沒有縫隙,以免漏光 (如有需要,請同事協助)。用手旋緊螺栓。

    模組化推送
作業

    圖 20. 附加基本和擴充支架。

  7. 基本裝置設定所述,設定光圈 (或窗簾),並安裝手機支架和 DUT。

    模組化對齊
分頁

    圖 21. 安裝手機支架和 DUT。

完成擴充裝置的設定後,請設定主機和測試環境 (設定 CTS)。如為 config.yml 檔案,請使用下列設定:

  • chart_distance = [DUT 到平板電腦的總距離]
  • lighting_ch = [已連線的控制通道],如果未使用照明控制器,則保留原樣。

解除安裝擴充功能設備

如要解除安裝擴充功能設備,請反向操作安裝步驟。安裝平板電腦安裝面板時,請將面板推向底座,確保沒有縫隙,以免漏光 (如圖 17 所示)。用手旋緊螺栓。

模組化推送
作業

圖 22. 將平板電腦安裝面板推向底座。

常見問題 (FAQ)

為什麼在遠端攝影機設定中,場景會遭到裁剪?

模組化攝影機架
裁剪

圖 23. 手機板在底座支架中裁剪場景。

如果底座和長焦延伸裝置之間的手機板擋住長焦鏡頭的視野,就會發生這種情況。請務必先用螺絲起子取下手機板,再繼續進行測試。

已移除模組化手機背蓋

圖 24. 從底座支架上取下手機板。

為什麼執行 ITS 時,燈光會顯得昏暗,或出現驗證燈光錯誤?

如果燈架的照明變暗,就會觸發這項錯誤。照明變暗可能是因為電源供應器和 LED 燈因老化或使用而衰退,也可能是電源供應器故障。如要解決這個問題,請按照下列步驟操作:

  1. 確認燈具正常運作:

    • 更換電源供應器 (UL 列名 12 伏特,至少 2 安培)。
    • 更換 LED (請參閱物料清單或洽詢供應商以瞭解詳情)。
  2. 為確保 LED 燈的照度達到適當程度 (100 至 300),請使用數位電錶測試照度。(本例中使用 Contempo Views 的 YF-1065 照度計)。將照度計放在平板電腦側邊,並轉到 2000 lux 測量光線 (如圖 21 所示)。

    Contempo Views 的 YF-1065

    圖 25. Contempo Views 的 YF-1065。

    照度計

    圖 26. 使用平板電腦支架從側面測量光線的照度計。

  3. 請根據測得的照度值採取適當步驟:

    • 如果亮度合適,請將前後板旋入鞋帶。
    • 如果燈光亮度不正確,請確認 LED 和電源供應器零件編號是否正確。

注意事項

以下列舉常見的製造錯誤,這些錯誤可能會導致測試不穩定。

  • 背板,平板電腦孔洞已穿孔。這會導致 find_circle 測試失敗,因為螺絲孔會產生額外的圓圈。

    有孔洞的背板

    圖 27. 背面有洞的背板。

  • 缺少木栓。導致光擋在運送過程中滑出。

    缺少木銷

    圖 28. 燈光擋板缺少定位銷。

  • 非 UL 列名的電源供應器。使用符合 UL 標準的電源插頭,可滿足標示的規格。這對安全操作燈具至關重要。

    通過 UL 認證的電源供應器

    圖 29. UL 認證電源供應器範例。

  • 平板電腦或手機支架上的螺絲鬆脫,無法支撐平板電腦或手機的重量。這通常是螺紋損壞所致,表示孔洞需要重新穿線。

    螺紋受損的孔洞

    圖 30. 螺紋損壞的孔洞。