Modüler bir kamera sistemi satın alma ve kurma

Modüler test düzeneği sistemi, ITS test otomasyonunu destekler ve bilgisayar destekli tasarım (CAD) çizimlerinden bilgisayarlı sayısal kontrol (CNC) ile kesilmiş bir plastik kutu, bir grafik tablet ve test edilen bir cihazdan (DUT) oluşur. Modüler rig sistemi, bir temel rig ve isteğe bağlı bir tele uzatma rig'inden oluşur. Modüler temel düzeneğin grafik mesafesi 22 cm'dir ve 60 ila 120 derece görüş alanına sahip mobil cihaz kameralarını test edebilir. Temel test düzeneği, test edilen cihaz üstte olacak şekilde 90 derece döndürülerek test yapabilir (Şekil 2'de gösterilmiştir).

Tele uzatma düzeneği, minimum odak mesafesi uzun olan kameraların (telefoto kameralar) test edilmesini destekler. Tele uzatma düzeneği, taban düzeneğine vidalanır ve uygun satıcılardan satın alırken uzunluğu kamera testi gereksinimlerinize göre özelleştirilebilir. Kamera ITS, 100 cm'ye kadar olan grafik mesafelerini destekler.

Modular Base Rev1.2

1. şekil. Modüler temel donanım.

Modular rev1.2 90deg

Şekil 2. Modüler temel donanım 90 derece döndürülmüş.

Düzeltme geçmişi

Aşağıdaki tabloda, modüler rig sisteminin revizyon geçmişi açıklanmakta ve üretim dosyalarının her sürümüne yönelik indirme bağlantıları yer almaktadır.

Tarih Düzeltme Üretim dosyası indirme Değişiklik günlüğü
Eylül 2024 1,2 Modular base rig rev1.2
  • (Eylül 2024) Üretim dosyası hatasıyla ilgili düzeltmeler içerir.
  • (Temmuz 2024) İlk sürüm

Modüler kamera sistemi satın alma

Modüler kamera sistemi, isteğe bağlı tele uzatma sistemi ve aksesuarları aşağıdaki nitelikli satıcılardan birinden satın almanızı öneririz.

  • Byte Bridge Inc.
    ABD: 1502 Crocker Ave, Hayward, CA 94544-7037
    Çin: 22F #06-08, Hongwell International Plaza Tower A, 1600 West Zhongshan Road, Xuhui, Şanghay, 200235
    www.bytebt.com
    [email protected]
    ABD: +1-510-373-8899
    Çin: +86-400-8866-490

  • JFT CO LTD 捷富通科技有限公司 (eski adıyla MYWAY DESIGN)
    Çin: No. 40, Lane 22, Heai Road, Wujing Town, Minhang District, Şanghay, Çin
    Tayvan: 4F., No. 163, Fu-Ying Road, XinZhuang District, New Taipei City 242, Tayvan
    www.jftcoltd.com
    [email protected] veya [email protected]
    Çin:+86-021-64909136
    Tayvan: 886-2-29089060

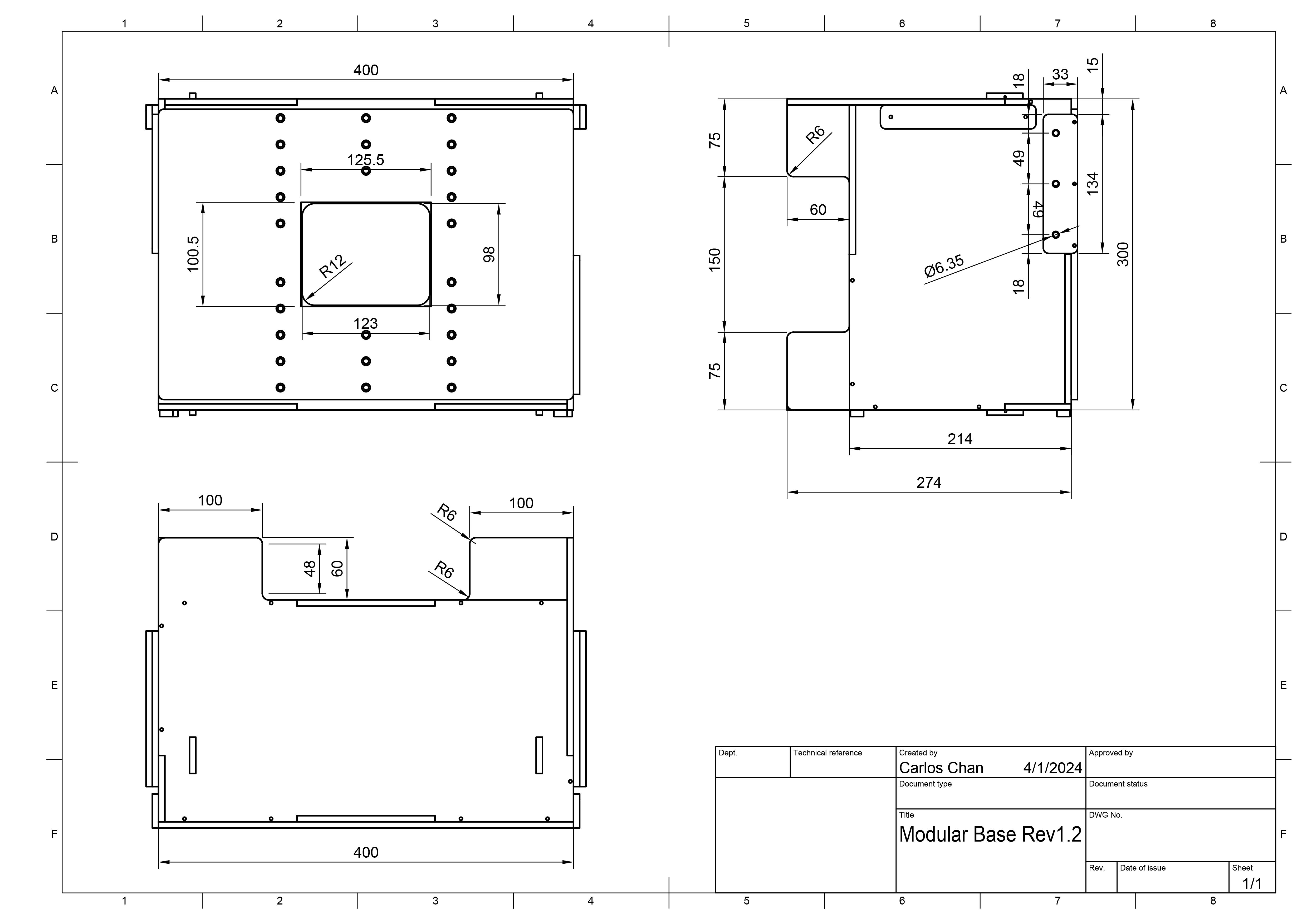
Mekanik çizimler

Aşağıda, modüler taban düzeneğinin mekanik çizimi verilmiştir.

Modüler tabanın CAD çizimi

3.Şekil Modüler temel platformun mekanik çizimi

Temel donanım kurulumu

Modüler bir temel donanım oluşturmak için aşağıdaki adımları uygulayın.

  1. Nitelikli bir satıcıdan modüler bir kamera sistemi satın alın.

  2. Aşağıdaki tabloda yer alan tüm bileşenlere sahip olduğunuzdan emin olun (Şekil 4'te gösterilen öğeler).

    Bileşen Miktar
    Modüler taban düzeneği 1
    Telefon montaj braketi 2
    Tablet montaj braketi 1
    12 V güç kaynağı (UL listeli, minimum 1 A) 1
    Diyafram 1

    Modular Base Rev1.2 Items

    Şekil 4. Modüler temel donanım bileşenleri.

  3. Kurulumunuza bağlı olarak, aşağıdaki tabloda (Şekil 5'te gösterilmiştir) gerekli aksesuarlara sahip olduğunuzdan emin olun. Bu aksesuarlar, nitelikli bir satıcıdan satın alınabilir.

    Öğe Miktar
    Aydınlatma kontrol cihazı (3 adede kadar ekipmanı kontrol edebilir) 1
    Aydınlatma denetleyicisi için 5 V güç kaynağı 1
    Işıklandırmayı modüler taban düzeneğine bağlayan DC silindir kablosu 1
    DC silindir kablo adaptörü (5,5 mm x 2,1 mm - 3,5 mm x 1,35 mm) 1
    USB A kablosu - USB kablosu 1
    Katlanabilir kit (DUT katlanabilir bir cihazsa) 1

    Modüler İsteğe Bağlı Öğeler

    5.şekil Modüler temel donanım için isteğe bağlı öğeler.

  4. Aşağıdaki işlemlerden birini yaparak ışık sızıntısı olmadığından emin olun:

    1. DUT'un kamera modülüne uyacak bir açıklık oluşturun ve ışık sızıntısı olmadığından emin olun (Şekil 6'da gösterildiği gibi). Açıklıklar, sağlanan köpük panolardan kesilebilir veya nitelikli bir satıcı tarafından yapılandırılabilir. Şeklin doğru yönlendirilmesi için arka kamerası düzeneğe bakan test cihazları 90° saat yönünün tersine, ön kamerası düzeneğe bakan test cihazları ise 90° saat yönünde döndürülür. Açıklıkların buna göre yapılandırıldığından emin olun.

      Modüler Diyafram Konumlandırma Modüler Diyafram Kesme

      6.şekil Işık sızıntısını önlemek için açıklıklar oluşturun.

    2. Işık sızmasını önlemek için düzeneği koyu renkli bir örtüyle kapatın. Açıklık gerekmez. (Şekil 7'de gösterilmiştir).

      Modüler Perde

      Şekil 7. Drape kullanarak ışık sızıntısını önleme.

  5. Şekil 8'de gösterildiği gibi, naylon cıvata ve somun kullanarak ön telefon montaj paneline uygun bir yükseklikte standart bir telefon montajı veya katlanabilir bir telefon montajı takın.

    Modüler açıklık ve montaj kurulumu

    Şekil 8. Aperture ve telefon montajı kurulumu.

  6. Naylon cıvata ve somun kullanarak tablet montajını, tablet montaj paneline uygun bir yükseklikte takın.

  7. Ekran tabletini monte edin ve tableti ana makineye Şekil 9'da gösterildiği gibi bağlayın. Tableti vantuzla sabitleyin.

    Modüler Tablet Kurulumu

    Şekil 9. Tablet kurulumu.

  8. Ekran üzerinde işlemleri kolaylaştırmak için, DUT'u monte etmeden önce DUT'unuzu kurun.

  9. Test cihazını monte edin ve ana makineye bağlayın.

  10. DUT'u, kamera modülünün merkezi tabletin merkeziyle hizalanacak (veya merkeze çok yakın olacak) şekilde yerleştirin. Yüksekliği ayarlamak için telefon montajı cıvatalarını gevşetin ve montajı yukarı veya aşağı kaydırın. Hizalandığında, DUT'u montaj pistonuyla sabitleyin.

    Modüler DUT kurulumu

    10.şekil DUT kurulumu.

  11. Işıklandırma için, taban düzeneğindeki ışıklandırma kablosunu aşağıdakilerden birine bağlayın:

    1. 12 V güç kaynağı

      Modüler 12 V bağlantısı

      11.Şekil 12 V güç kaynağına bağlı ışık.

    2. Aydınlatma denetleyicisi (adaptör gerekebilir)

      Modüler kumanda bağlantısı

      Şekil 12. Aydınlatma kontrol cihazına bağlı ışık.

Modüler taban düzeneğinin kurulumunu tamamladığınızda ana makineyi ve test ortamını ayarlayın (CTS'yi ayarlama). config.yml dosyası için aşağıdaki yapılandırmayı kullanın:

  • chart\_distance = 22
  • lighting\_ch = [bağlı kumanda kanalı] veya aydınlatma kumandası kullanmıyorsanız olduğu gibi bırakın.

Tele uzatma düzeneği kurulumu

İsteğe bağlı tele uzatma düzeneğini kurmak için aşağıdaki adımları uygulayın.

  1. Modüler taban düzeneğini ve tele uzatma düzeneğini nitelikli bir satıcıdan satın alın. Donanım, üretim dosyaları kullanılarak oluşturulabilir ancak bu işlem, uzatma donanımının uyum sorunları yaşamaması için kesme ve montaj işlemlerinin doğru yapılması gerektiğinden önerilmez.

  2. Çalışan bir modüler temel donanımınız ve bir tele uzatma donanımınız olduğundan emin olun (Şekil 13'te gösterildiği gibi).

    Modular tele

    Şekil 13. Tele uzantılı modüler taban donanımı.

  3. 6 naylon cıvatayı elle sökerek (her iki tarafta 3 tane) telefon montaj panelini çıkarın.

    Modüler cıvata vurgusu Modüler cıvata sökme Modüler ön plaka kapalı

    Şekil 14. Vurgulanan alandaki 6 naylon cıvatayı elle çıkarın.

  4. Temel donanımı ve tele uzatma donanımını testlerin yapılacağı yüzeye yerleştirin. Montaj noktalarına zarar vermemek için monte edilmiş düzeneğin taşınmasını önermiyoruz.

  5. Uzatma düzeneğini, uzatma düzeneğindeki 6 yuvanın taban düzeneğindeki 6 delikle aynı hizaya gelecek şekilde yerleştirin.

    Modüler hizalama sekmesi

    15.şekil Yuvaları deliklerle hizalama

  6. 6 vidayı takarak uzatma düzeneğini taban düzeneğine bağlayın. Vidaları takarken ışık sızıntısı olmaması için 2 düzeneği nazikçe birbirine itin (gerekirse bir iş arkadaşınızdan yardım isteyin). Cıvataları elle sıkın.

    Birlikte itilen modüler

    16. şekil. Temel ve uzantı donanımlarını bağlama

  7. Temel donanım kurulumu bölümünde açıklandığı gibi diyaframı (veya perdeyi) yapılandırın ve telefon montajlarını ve test edilen cihazları takın.

    Modüler hizalama sekmesi

    17. şekil. Telefon montajlarını ve DUT'u takma.

Uzatma düzeneğinin kurulumunu tamamladığınızda ana makineyi ve test ortamını kurun (CTS'yi kurma). config.yml dosyası için aşağıdaki yapılandırmayı kullanın:

  • chart_distance = [DUT'tan tablete kadar olan toplam mesafe]
  • lighting_ch = [bağlı kontrol kanalı] veya aydınlatma denetleyicisi kullanmıyorsanız olduğu gibi bırakın.

Uzantı donanımını kaldırma

Uzantı donanımının yüklemesini kaldırmak için yükleme adımlarını ters sırada uygulayın. Tablet montaj panelini takarken ışık sızıntısı olmaması için paneli taban düzeneğine doğru itin (Şekil 17'de gösterildiği gibi). Cıvataları elle sıkın.

Birlikte itilen modüler

18.şekil Tablet montaj panelini taban düzeneğine doğru itme.

Sık sorulan sorular (SSS)

Neden tele rig'de sahne kırpılıyor?

Modüler kamera donanımı kırpma

Şekil 19. Sahne, taban düzeneğindeki telefon plakası tarafından kırpılıyor.

Bu durum, temel rig ile telefoto uzantısı arasındaki telefon plakası telefoto lensin görüş alanını engellediğinde meydana gelir. Teste devam etmeden önce tornavidayla telefon plakasını çıkardığınızdan emin olun.

Modüler telefon plakası kaldırıldı

Şekil 20. Taban düzeneğindeki telefon plakasını çıkarma

ITS çalıştırılırken ışıklar neden soluk görünüyor veya neden ışıklandırmayı doğrulama hatası gösteriliyor?

Bu hata, donanımdaki ışıklandırma zayıfladığında tetiklenir. Bu durum, güç kaynağı ve LED'lerin yaş veya kullanım nedeniyle bozulmasından ya da hatalı bir güç kaynağından kaynaklanabilir. Bu sorunu çözmek için lütfen aşağıdaki adımları uygulayın:

  1. Aydınlatmanın düzgün çalıştığından emin olun:

    • Güç kaynağını değiştirin (UL listesinde yer alan 12 volt, en az 2 amper).
    • LED'i değiştirin (daha fazla bilgi için malzeme listesine bakın veya satıcıyla iletişime geçin).
  2. LED ışıkların lüks değerinin uygun seviyede (100-300) olduğundan emin olmak için lüks değerini dijital ölçüm cihazıyla test edin. (Bu örnekte Contempo Views tarafından üretilen YF-1065 lüksmetre kullanılmaktadır.) Işık ölçeri tablet tarafına yerleştirin ve ışığı ölçmek için 2.000 lükse çevirin (Şekil 21'de gösterilmiştir).

    YF-1065 by Contempo Views

    Şekil 21. Contempo Views'un YF-1065 modeli.

    Işık ölçer

    22. şekil. Tablet montajı olan taraftan gelen ışığı ölçen lüks ışık ölçer.

  3. Ölçülen lüks değerine bağlı olarak uygun adımı uygulayın:

    • Işık doğru seviyedeyse ön ve arka plakaları vidalayın.
    • Işık yanlış seviyedeyse LED ve güç kaynağı parça numarasının doğru olup olmadığını kontrol edin.

Dikkat etmeniz gerekenler

Aşağıda, testlerin güvenilirliğini etkileyebilecek yaygın üretim hatalarına dair örnekler verilmiştir.

  • Tablet deliklerinin açıldığı arka panel. Bu durum, vida deliklerinin oluşturduğu ekstra daireler nedeniyle find_circle testinin başarısız olmasına neden olur.

    Delikli arka panel

    23.şekil Arka panelde delikler açılmış.

  • Eksik dübeller. Bu durum, nakliye sırasında ışık bölmelerinin kaymasına neden olur.

    Eksik dübel

    Şekil 24. Işık bölmesinde dübel eksik.

  • UL listesinde yer almayan güç kaynağı. UL listesinde yer alan bir güç kaynağı kullanıldığında, etiketli özellikler karşılanır. Bu, aydınlatmanın güvenli bir şekilde çalıştırılması için önemlidir.

    UL onaylı güç kaynağı

    25. şekil. UL listesinde yer alan güç kaynağı örneği.

  • Tablet veya telefon ağırlığını destekleyemeyen tablet ya da telefon montaj aparatındaki vidaların kayması. Bu durum genellikle hasarlı dişlerden kaynaklanır ve deliğin yeniden dişlenmesi gerektiğini gösterir.

    Hasarlı dişlere sahip delik

    26.şekil Dişleri hasar görmüş delik.