Модульная система стенда поддерживает автоматизацию тестирования ITS и состоит из пластикового корпуса, изготовленного на станке с ЧПУ по чертежам автоматизированного проектирования (САПР), планшета для тестирования и тестируемого устройства (DUT). Модульная система стенда состоит из базового стенда и опционального телескопического удлинительного стенда. Базовый модульный стенд имеет расстояние до тестируемого устройства 22 см и может тестировать камеры мобильных устройств с углом обзора от 60 до 120 градусов. Базовый стенд может выполнять тестирование при повороте на 90 градусов с тестируемым устройством сверху (показано на рисунке 2).
Телескопическая удлинительная система предназначена для тестирования камер с большим минимальным расстоянием фокусировки (телефотокамеры). Телескопическая удлинительная система крепится болтами к базовой стойке, а ее длина может быть настроена в соответствии с требованиями к тестированию вашей камеры при покупке у сертифицированных поставщиков . Система Camera ITS поддерживает расстояния до тестовой таблицы до 100 см. Существует два типа телескопических удлинительных систем: гибкая телеудлинительная система и телеудлинительная система фиксированной длины. Гибкая телеудлинительная система позволяет проводить тестирование с различными расстояниями до тестовой таблицы, в то время как система фиксированной длины позволяет проводить тестирование только с одним расстоянием до тестовой таблицы. Гибкая телеудлинительная система будет доступна с марта 2026 года.

Рисунок 1. Модульная базовая установка.

Рисунок 2. Модульная базовая установка, повернутая на 90 градусов.

Рисунок 3. Удлинительные устройства Flexi-Tele от двух наших авторизованных поставщиков.
История изменений
В таблице ниже приведена история изменений модульной системы буровых установок, а также ссылки для скачивания каждой версии производственных файлов.
| Дата | Пересмотр | Загрузка производственного файла | Журнал изменений |
|---|---|---|---|
| Сентябрь 2024 г. | 1.2 | Модульная базовая установка, версия 1.2 |
|
Приобретите модульную буровую систему.
Мы рекомендуем приобретать модульную систему крепления, дополнительный телескопический удлинитель и аксессуары у одного из следующих квалифицированных поставщиков.
Byte Bridge Inc.
США: 1502 Crocker Ave, Hayward, CA 94544-7037
Китай: 22 этаж, № 06-08, Hongwell International Plaza Tower A, Западная улица Чжуншань, 1600, Сюйхуэй, Шанхай, 200235
www.bytebt.com
androidpartner@bytebt.com
США: +1-510-373-8899
Китай: +86-400-8866-490JFT CO LTD 捷富通科技有限公司 (ранее известная как MYWAY DESIGN)
Китай: № 40, переулок 22, Heai Road, город Уцзин, район Минхан, Шанхай, Китай.
Тайвань: 4F., № 163, Fu-Ying Road, район Синьчжуан, Нью-Тайбэй 242, Тайвань.
www.jftcoltd.com
service@jfttec.com или its.sales@jfttec.com
Китай: +86-021-64909136
Тайвань: 886-2-29089060
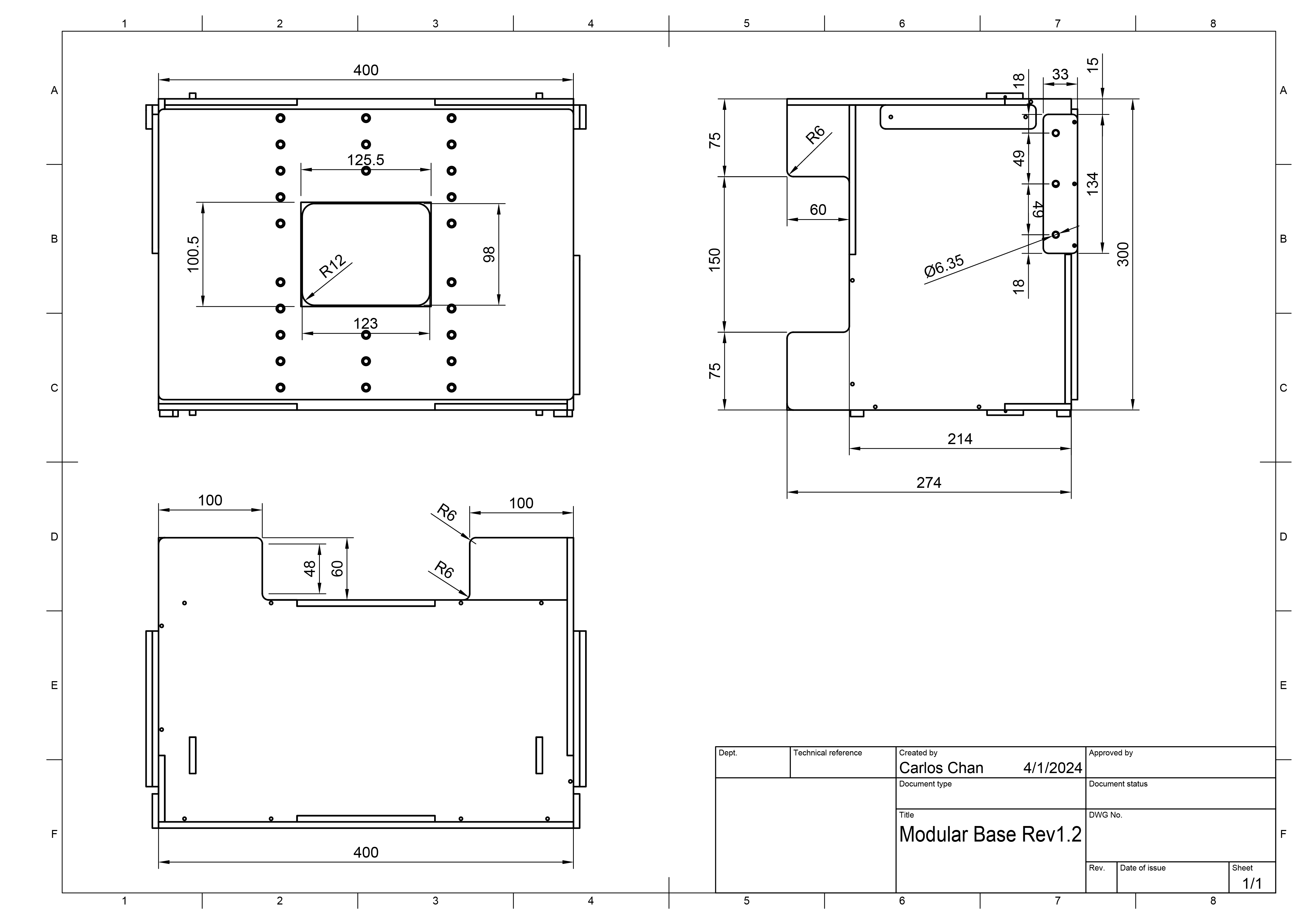
Механические чертежи
Ниже представлен механический чертеж модульной базовой буровой установки.

Рисунок 4. Механический чертеж модульной базовой буровой установки.
Базовая установка буровой установки
Выполните следующие шаги для сборки модульной базовой буровой установки.
Приобретайте модульные буровые установки у квалифицированного поставщика.
Убедитесь, что у вас есть все компоненты, указанные в следующей таблице (элементы показаны на рисунке 4).
Компонент Количество Модульная базовая установка 1 Кронштейн для крепления телефона 2 Кронштейн для крепления планшета 1 Блок питания 12 В (сертифицирован UL, минимальный ток 1 А) 1 Апертура 1 
Рисунок 5. Модульные компоненты базовой буровой установки.
В зависимости от вашей конфигурации убедитесь, что у вас есть необходимые аксессуары из следующей таблицы (показаны на рисунке 5). Эти аксессуары можно приобрести у квалифицированного поставщика.
Элемент Количество Контроллер освещения (может управлять до 3 установками) 1 Блок питания 5 В для контроллера освещения 1 Кабель постоянного тока, соединяющий осветительные приборы с модульной базовой установкой. 1 Адаптер для кабеля постоянного тока (5,5 мм x 2,1 мм на 3,5 мм x 1,35 мм) 1 Кабель USB A — кабель USB 1 Складной комплект (если тестируемое устройство является складным) 1 
Рисунок 6. Дополнительные элементы для модульной базовой установки.
Чтобы исключить утечку света, выполните одно из следующих действий:
- Изготовьте отверстие, соответствующее модулю камеры тестируемого устройства, и убедитесь в отсутствии утечек света (как показано на рисунке 6). Отверстия можно вырезать из предоставленных пенопластовых листов или заказать у квалифицированного поставщика. Для правильной ориентации устройства с задней камерой, обращенной к установке, поворачиваются на 90° против часовой стрелки, а устройства с передней камерой, обращенной к установке, — на 90° по часовой стрелке. Убедитесь, что отверстия сконфигурированы соответствующим образом.


Рисунок 7. Изготовьте отверстия для предотвращения утечки света.
- Для предотвращения утечки света используйте темную драпировку, чтобы накрыть конструкцию; отверстия не требуются (показано на рисунке 7).

Рисунок 8. Предотвращение утечки света с помощью шторы.
Установите стандартное или складное крепление для телефона на переднюю панель крепления телефона на соответствующей высоте, используя нейлоновый болт и гайку, как показано на рисунке 8.

Рисунок 9. Установка диафрагмы и крепления для телефона.
Установите крепление для планшета на монтажную панель планшета на подходящей высоте с помощью нейлонового болта и гайки.
Установите планшет с дисплеем и подключите его к главному устройству, как показано на рисунке 9. Зафиксируйте планшет с помощью поршня.

Рисунок 10. Установка планшета.
Для упрощения работы с экраном, подготовьте тестируемое устройство до его установки.
Смонтируйте тестируемое устройство и подключитесь к хосту.
Расположите тестируемое устройство так, чтобы центр модуля камеры совпадал (или был очень близок) с центром планшета. Для регулировки высоты ослабьте болты крепления телефона и сдвиньте крепление вверх или вниз. После выравнивания зафиксируйте тестируемое устройство с помощью фиксатора крепления.

Рисунок 11. Установка тестируемого устройства.
Для подключения освещения подключите кабель освещения от базовой установки к одному из следующих разъемов:
- Источник питания 12 В

Рисунок 12. Лампа, подключенная к источнику питания 12 В.
- Контроллер освещения (возможно, потребуется адаптер)

Рисунок 13. Светильник, подключенный к контроллеру освещения.
После завершения настройки модульной базовой установки настройте хост и тестовую среду ( Настройка CTS ). Для файла config.yml используйте следующую конфигурацию:
-
chart\_distance= 22 -
lighting\_ch= [подключенный канал контроллера], или оставьте как есть, если не используете контроллер освещения.
Настройка удлинительной установки Flexi-Tele
Если вы приобрели модульную базовую установку до марта 2026 года, вам может потребоваться небольшая доработка для работы с гибким телеудлинителем. Эта модификация устраняет проблему, связанную с тем, что передняя панель перекрывает поле зрения телекамеры тестируемого устройства, и может также использоваться с установкой с телеудлинителем фиксированной длины.
Выполните следующие шаги для модернизации модульной базовой буровой установки.
Открутите четыре винта сверху, крепящие переднюю панель, а также четыре нижних винта.

Рисунок 14. Винты на конструкции, удерживающие переднюю пластину.
(Необязательно) Прикрепите крепежную пластину для телефона к передней пластине болтами или клеем таким образом, чтобы пластины снимались одновременно.

Рисунок 15. Болты для крепления пластины для телефона и передней панели.
(Необязательно) Если к передней панели вашего устройства прикреплен кабель питания для освещения, идущий снизу вверх, переместите его в сторону с помощью изоленты или стяжек.

Рисунок 16. Кабель питания светильника, идущий снизу вверх, перемещен в сторону.
Подключите модульную базовую установку к удлинительной установке Flexi-Tele.
Видеодемонстрация
Это видеодемонстрация того, как настроить удлинительную систему Flexi-Tele:
Настройка телескопической удлинительной рамы фиксированной длины
Выполните следующие шаги для настройки дополнительного телескопического удлинителя.
Приобретайте модульную базовую стойку и телескопическую удлинительную стойку у квалифицированного поставщика. Стойку можно собрать, используя производственные файлы, но это не рекомендуется, поскольку для обеспечения точности раскроя и сборки удлинительной стойки необходимы соответствующие параметры.
Убедитесь, что у вас есть исправная модульная базовая установка и телескопическая удлинительная установка (как показано на рисунке 13).

Рисунок 17. Модульная базовая установка с телескопическим удлинителем.
Для снятия панели крепления телефона открутите вручную 6 нейлоновых болтов (по 3 с каждой стороны).



Рисунок 18. Удаление 6 нейлоновых болтов в выделенной области вручную.
Установите базовую установку и телескопическую удлинительную установку на поверхности, где будут проводиться испытания. Во избежание нагрузки на точки крепления мы не рекомендуем перемещать собранную установку.
Установите удлинительную конструкцию на место так, чтобы 6 пазов на выступе удлинительной конструкции совпали с 6 отверстиями на базовой конструкции.

Рисунок 19. Совмещение пазов с отверстиями.
Прикрепите удлинительную конструкцию к базовой конструкции, закрепив ее шестью болтами. При закручивании винтов аккуратно сдвиньте две конструкции друг к другу, чтобы исключить зазоры, через которые может проникать свет (при необходимости обратитесь за помощью к коллеге). Затяните болты вручную.

Рисунок 20. Крепление базового и удлинительного каркасов.
Настройте диафрагму (или драпировку) и установите крепления для телефонов и тестируемые устройства, как описано в разделе «Настройка базовой системы» .

Рисунок 21. Крепление держателей для телефона и тестируемого устройства.
После завершения настройки расширения настройте хост и тестовую среду ( Настройка CTS ). Для файла config.yml используйте следующую конфигурацию:
-
chart_distance= [общее расстояние от тестируемого устройства до планшета] -
lighting_ch= [подключенный канал управления], или оставьте как есть, если не используете контроллер освещения.
Удалите расширение rig
Для демонтажа дополнительного крепления выполните действия по установке в обратном порядке. При установке панели для крепления планшета прижмите ее к основанию крепления, чтобы исключить зазоры, через которые может проникать свет (как показано на рисунке 17). Затяните болты вручную.

Рисунок 22. Прижимание монтажной панели планшета к основанию конструкции.
Часто задаваемые вопросы (FAQ)
Почему сцена обрезана при использовании телеобъектива?

Рисунок 23. Сцена, обрезанная по телефонной пластине на базовой установке.
Это происходит, когда поле зрения телеобъектива перекрывается пластиной, расположенной между базовым креплением и телеудлинителем. Перед началом тестирования обязательно снимите пластину с помощью отвертки.

Рисунок 24. Снятие телефонной пластины с базовой установки.
Почему свет кажется тусклым или почему при запуске ITS появляется ошибка проверки освещения?
Эта ошибка возникает, когда освещение в установке становится тусклее, что может быть вызвано неисправностью блока питания и износом светодиодов из-за возраста или использования, либо неисправностью блока питания. Для решения этой проблемы выполните следующие действия:
Убедитесь, что освещение работает исправно:
- Замените блок питания (сертифицированный UL, 12 вольт, минимум 2 ампера).
- Замените светодиод (см. спецификацию или свяжитесь с поставщиком для получения дополнительной информации).
Чтобы убедиться, что уровень освещенности светодиодных ламп находится на соответствующем уровне (100–300 люкс), измерьте освещенность с помощью цифрового люксметра. (В этом примере используется люксметр YF-1065 от Contempo Views .) Поместите люксметр на сторону планшета и поверните его на 2000 люкс для измерения освещенности (показано на рисунке 21).

Рисунок 25. YF-1065 от Contempo Views.

Рисунок 26. Люксметр, измеряющий освещенность сбоку, с креплением для планшета.
В зависимости от измеренного значения в люксах выполните следующие действия:
- Если уровень освещения установлен правильно, прикрутите переднюю и заднюю пластины к крепежным элементам.
- Если уровень яркости неправильный, проверьте правильность номеров деталей светодиода и блока питания.
На что следует обратить внимание
Ниже приведены примеры распространенных производственных ошибок, которые могут привести к ненадежности результатов тестирования.
Задняя панель с проделанными отверстиями для планшета. Это приводит к сбою теста
find_circleиз-за дополнительных кругов, созданных отверстиями для винтов.
Рисунок 27. Задняя панель с проделанными отверстиями.
Отсутствуют штифты. Из-за этого светозащитные экраны выскальзывают во время транспортировки.

Рисунок 28. Отсутствует штифт на светоотражателе.
Блок питания, не имеющий сертификата UL. Использование блока питания, имеющего сертификат UL, гарантирует соответствие заявленным характеристикам. Это важно для безопасной эксплуатации осветительных приборов.

Рисунок 29. Пример блока питания, сертифицированного UL.
Проскальзывание винтов на креплении планшета или телефона, которые не выдерживают вес устройства. Обычно это происходит из-за повреждения резьбы и указывает на необходимость повторной нарезки резьбы в отверстии.

Рисунок 30. Отверстие с поврежденной резьбой.