Comprar e configurar um sistema de plataforma modular

O sistema de suporte modular é compatível com a automação de testes do ITS e consiste em uma caixa plástica usinada em controle numérico computadorizado (CNC) a partir de desenhos computadorizados (CAD), um tablet gráfico e um dispositivo em teste (DUT). O sistema de suporte modular é composto por um suporte base e uma extensão opcional para teleobjetiva. O suporte modular tem uma distância de gráfico de 22 cm e pode testar câmeras de dispositivos móveis com um campo de visão de 60 a 120 graus. O suporte de base pode realizar testes girados em 90 graus com o DUT na parte de cima (mostrado na Figura 2).

O equipamento de extensão tele suporta testes de câmeras com uma longa distância mínima de foco (câmeras teleobjetivas). O suporte de extensão telescópica é parafusado ao suporte de base, e o comprimento pode ser personalizado com base nos requisitos de teste da câmera ao comprar de fornecedores qualificados. O ITS da câmera é compatível com distâncias de gráfico de até 100 cm.

Base modular Rev1.2

Figura 1. Suporte de base modular.

Modular rev1.2 90deg

Figura 2. Suporte de base modular rotacionado em 90 graus.

Histórico de revisões

A tabela a seguir descreve o histórico de revisões do sistema de suporte modular e inclui links para download de cada versão dos arquivos de produção.

Data Revisão Download de arquivos de produção Registro de alterações
Setembro de 2024 1.2 Suporte de base modular rev1.2
  • (Setembro de 2024) Inclui correções para um erro de arquivo de produção
  • (Julho de 2024) Lançamento inicial

Comprar um sistema de suporte modular

Recomendamos comprar o sistema de suporte modular, o suporte de extensão para teleobjetiva opcional e os acessórios de um dos seguintes fornecedores qualificados.

  • Byte Bridge Inc.
    EUA: 1502 Crocker Ave, Hayward, CA 94544-7037
    China: 22F #06-08, Hongwell International Plaza Tower A, 1600 West Zhongshan Road, Xuhui, Xangai, 200235
    www.bytebt.com
    [email protected]
    EUA: +1-510-373-8899
    China: +86-400-8866-490

  • JFT CO LTD 捷富通科技有限公司 (antes conhecida como MYWAY DESIGN)
    China: No. 40, Lane 22, Heai Road, Wujing Town, Minhang District, Xangai, China
    Taiwan: 4F., Nº 163, Rua Fu-Ying, Distrito de XinZhuang, New Taipei City 242, Taiwan
    www.jftcoltd.com
    [email protected] ou [email protected]
    China:+86-021-64909136
    Taiwan: 886-2-29089060

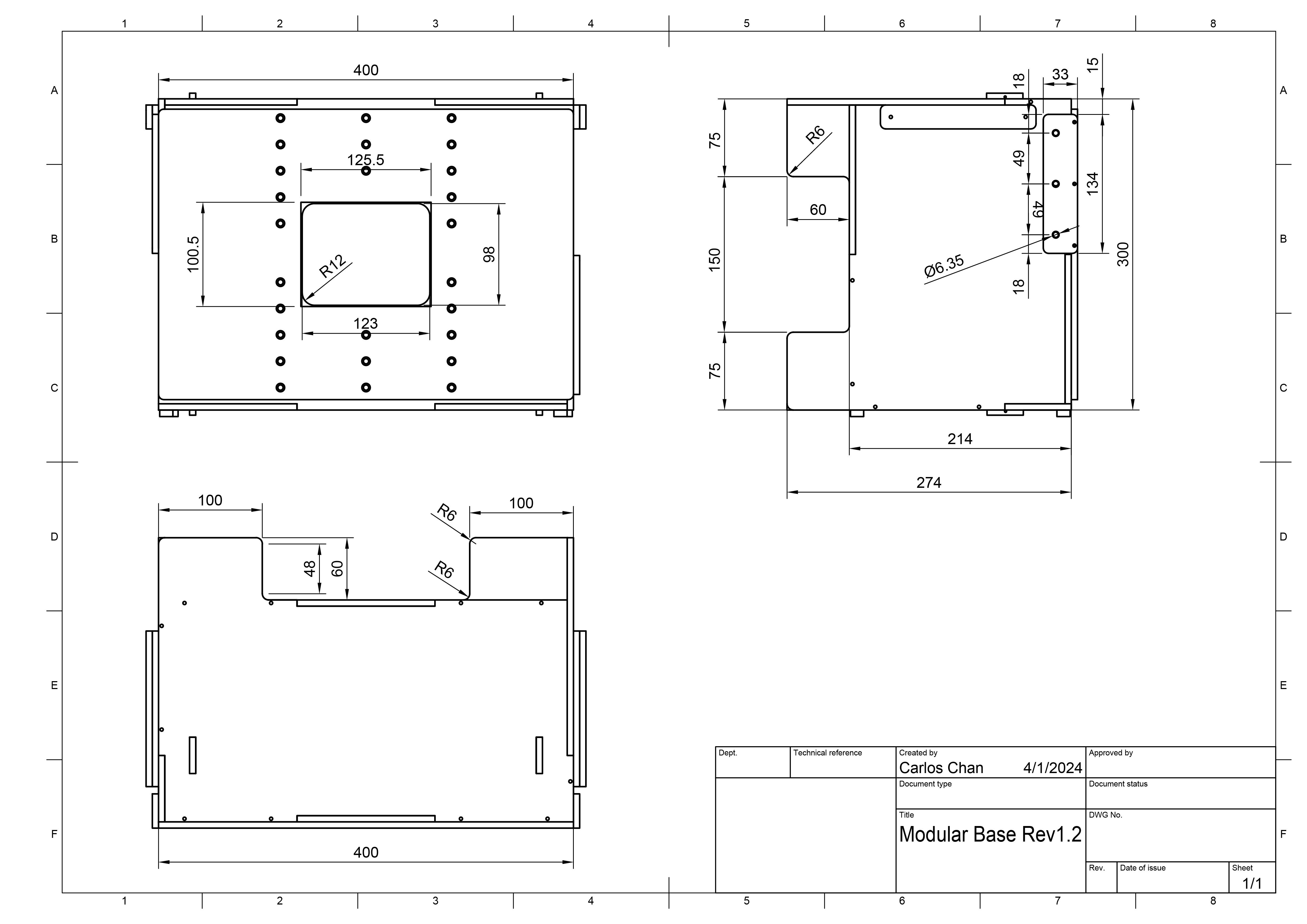
Desenhos mecânicos

Confira a seguir um desenho mecânico do suporte de base modular.

Desenho CAD da base modular

Figura 3. Desenho mecânico de um suporte de base modular

Configuração básica do suporte

Siga estas etapas para configurar um suporte de base modular.

  1. Compre um sistema de suporte modular de um fornecedor qualificado.

  2. Verifique se você tem todos os componentes na tabela a seguir (itens mostrados na Figura 4).

    Componente Quantidade
    Suporte de base modular 1
    Suporte para smartphone 2
    Suporte para tablet 1
    Fonte de alimentação de 12 V (com certificação UL, mínimo de 1 A) 1
    Abertura 1

    Itens da base modular Rev1.2

    Figura 4. Componentes para suporte de base modular.

  3. Dependendo da sua configuração, confira se você tem os acessórios necessários na tabela a seguir (mostrada na Figura 5). Esses acessórios podem ser comprados de um fornecedor qualificado.

    Item Quantidade
    Controlador de iluminação (pode controlar até três equipamentos) 1
    Fonte de alimentação de 5 V para o controlador de iluminação 1
    Cabo coaxial CC que conecta a iluminação ao suporte de base modular 1
    Adaptador de cabo coaxial CC (5,5 mm x 2,1 mm para 3,5 mm x 1,35 mm) 1
    Cabo USB-A para USB 1
    Kit dobrável (se o DUT for um dispositivo dobrável) 1

    Itens opcionais modulares

    Figura 5. Itens opcionais para o suporte de base modular.

  4. Para evitar vazamentos de luz, faça o seguinte:

    1. Fabrique uma abertura para encaixar o módulo de câmera do DUT e verifique se não há vazamentos de luz (conforme mostrado na Figura 6). As aberturas podem ser cortadas das placas de espuma fornecidas ou configuradas por um fornecedor qualificado. Para a orientação correta da figura, os DUTs com a câmera traseira voltada para o suporte são girados 90° no sentido anti-horário, e os DUTs com a câmera frontal voltada para o suporte são girados 90° no sentido horário. Verifique se as aberturas estão configuradas corretamente.

      Posicionamento modular da abertura Corte de abertura modular

      Figura 6. Fabrique aberturas para evitar vazamento de luz.

    2. Use um tecido escuro para cobrir o equipamento e evitar vazamento de luz. Não é necessário deixar aberturas. (mostrado na Figura 7).

      Cortina modular

      Figura 7. Como evitar vazamento de luz usando um tecido.

  5. Instale um suporte padrão ou dobrável para smartphone no painel de suporte frontal na altura adequada usando um parafuso e uma porca de nylon, conforme mostrado na Figura 8.

    Instalação modular de abertura e suporte

    Figura 8. Instalação do diafragma e do suporte para smartphone.

  6. Instale o suporte do tablet no painel de fixação em uma altura adequada usando um parafuso e uma porca de nylon.

  7. Encaixe o tablet de exibição e conecte-o ao host, conforme mostrado na Figura 9. Prenda o tablet com um êmbolo.

    Instalação modular de tablet

    Figura 9. Instalação do tablet.

  8. Para facilitar a operação na tela, configure o DUT antes de colocar no suporte.

  9. Monte o DUT e conecte-o ao host.

  10. Alinhe o DUT para que o centro do módulo de câmera fique alinhado com o centro do tablet (ou muito próximo a ele). Para ajustar a altura, solte os parafusos de fixação do smartphone e deslize o suporte para cima ou para baixo. Quando estiver alinhado, prenda o DUT com o êmbolo do suporte.

    Instalação modular do DUT

    Figura 10. Instalação do DUT.

  11. Para iluminação, conecte o cabo da base a um dos seguintes itens:

    1. Fonte de alimentação de 12 V

      Conexão modular de 12 V

      Figura 11. Luz conectada a uma fonte de alimentação de 12 V.

    2. Controlador de iluminação (talvez seja necessário um adaptador)

      Conexão do controle modular

      Figura 12. Luz conectada ao controlador de iluminação.

Depois de concluir a configuração do suporte modular, configure o host e o ambiente de teste (Configurar o CTS). Para o arquivo config.yml, use a seguinte configuração:

  • chart\_distance = 22
  • lighting\_ch = [canal do controlador conectado] ou deixe como está se não estiver usando um controlador de iluminação.

Configuração do suporte de extensão telescópica

Siga estas etapas para configurar o suporte de extensão telescópica opcional.

  1. Compre o suporte de base modular e a extensão para teleobjetiva com um fornecedor qualificado. O suporte pode ser montado usando os arquivos de produção, mas isso não é recomendado porque o corte e a montagem precisam ser precisos para garantir que o suporte de extensão não tenha problemas de encaixe.

  2. Verifique se você tem um equipamento de base modular funcional e um equipamento de extensão telescópica (conforme mostrado na Figura 13).

    Modular tele

    Figura 13. Suporte de base modular com extensão para teleobjetiva.

  3. Remova o painel de suporte do smartphone soltando seis parafusos de náilon com a mão (três de cada lado).

    Destaque do parafuso modular Remoção de parafusos modulares Placa frontal modular desligada

    Figura 14. Remova seis parafusos de nylon na área destacada com as mãos.

  4. Coloque o suporte de base e o suporte de extensão telescópica na superfície onde os testes serão realizados. Para evitar danos aos pontos de fixação, não recomendamos mover o equipamento montado.

  5. Coloque o suporte de extensão no lugar para que as 6 aberturas na guia do suporte de extensão se alinhem aos 6 furos no suporte de base.

    Guia de alinhamento modular

    Figura 15. Alinhar os slots com os furos.

  6. Fixe o suporte de extensão ao suporte de base instalando os seis parafusos. Ao instalar os parafusos, empurre suavemente os dois suportes para garantir que não haja espaços para vazamentos de luz. Peça ajuda a um colega, se necessário. Aperte os parafusos com as mãos.

    Push modular

    Figura 16. Como anexar suportes de base e extensão.

  7. Configure a abertura (ou cortina) e instale os suportes para smartphone e os DUTs conforme descrito em Configuração do suporte de base.

    Guia de alinhamento modular

    Figura 17. Como fixar suportes de smartphone e o DUT.

Depois de concluir a configuração do suporte da extensão, configure o host e o ambiente de teste (Configurar o CTS). Para o arquivo config.yml, use a seguinte configuração:

  • chart_distance = [distância total do DUT até o tablet]
  • lighting_ch = [canal de controle conectado] ou deixe como está se não estiver usando um controlador de iluminação.

Desinstalar o rig de extensão

Para desinstalar o equipamento de extensão, siga as etapas de instalação ao contrário. Ao instalar o painel de suporte do tablet, pressione-o contra o suporte para garantir que não haja espaços para vazamentos de luz (conforme mostrado na Figura 17). Aperte os parafusos com a mão.

Push modular

Figura 18. Empurrando o painel de suporte do tablet contra o suporte de base.

Perguntas frequentes

Por que a cena é cortada em um equipamento de telemetria?

Corte de suporte modular

Figura 19. Cena cortada pela placa do smartphone no suporte de base.

Isso acontece quando o campo de visão de uma lente teleobjetiva é bloqueado pela placa do smartphone entre o suporte de base e a extensão teleobjetiva. Remova a placa do telefone com uma chave de fenda antes de continuar com o teste.

A placa modular do telefone foi removida

Figura 20. Remover a placa do smartphone do suporte de base.

Por que as luzes parecem escuras ou por que um erro de validação de iluminação aparece ao executar o ITS?

Esse erro é acionado quando a iluminação do equipamento fica mais fraca, o que pode ser causado por degradação da fonte de alimentação e do LED devido à idade ou ao uso, ou por uma fonte de alimentação com defeito. Para resolver o problema, siga estas etapas:

  1. Verifique se a iluminação está funcionando corretamente:

    • Substitua a fonte de alimentação (12 volts, no mínimo 2 ampères, com certificação UL).
    • Substitua o LED. Consulte a lista de materiais ou entre em contato com o fornecedor para mais informações.
  2. Para garantir que o lux das luzes LED esteja no nível adequado (100 a 300), teste com um medidor digital. O luxímetro YF-1065 da Contempo Views é usado neste exemplo. Coloque o medidor de luz na lateral do tablet e gire até 2.000 lux para medir a luz (mostrado na Figura 21).

    YF-1065 da Contempo Views

    Figura 21. YF-1065 da Contempo Views.

    Luxímetro

    Figura 22. Luxímetro medindo a luz da lateral com o suporte do tablet.

  3. Dependendo do valor de lux medido, siga a etapa adequada:

    • Se a luz estiver no nível correto, aparafuse as placas frontal e traseira no encaixe.
    • Se a luz estiver no nível incorreto, verifique se o LED e o número da peça da fonte de alimentação estão corretos.

O que procurar

Confira a seguir exemplos de erros comuns de fabricação que podem tornar os testes instáveis.

  • Painel traseiro com furos para tablet. Isso faz com que o teste find_circle falhe devido aos círculos extras criados pelos furos dos parafusos.

    Painel traseiro com furos

    Figura 23. Painel traseiro com furos.

  • Faltam pinos. Isso faz com que os defletores de luz escorreguem durante o transporte.

    Pino ausente

    Figura 24. Falta um pino na proteção da luz.

  • Fonte de alimentação não listada pela UL. O uso de uma fonte de alimentação certificada pela UL atende às especificações indicadas. Isso é importante para operar a iluminação com segurança.

    Fonte de alimentação listada pela UL

    Figura 25. Exemplo de uma fonte de alimentação listada pela UL.

  • Parafusos soltos no suporte para tablet ou smartphone que não aguentam o peso de um tablet ou smartphone. Isso geralmente é causado por roscas danificadas e indica que o furo precisa ser refeito.

    Furo com roscas danificadas

    Figura 26. Furo com roscas danificadas.