Acquistare e configurare un sistema di rig modulare

Il sistema di banco di prova modulare supporta l'automazione dei test ITS ed è costituito da una scatola di plastica tagliata con controllo numerico computerizzato (CNC) da disegni di progettazione assistita da computer (CAD), un tablet con grafico e un dispositivo in fase di test (DUT). Il sistema di rig modulare è composto da un rig di base e da un rig di estensione telescopica opzionale. Il rig di base modulare ha una distanza del grafico di 22 cm e può testare le fotocamere dei dispositivi mobili con un campo visivo da 60 a 120 gradi. Il rig di base può eseguire test ruotati di 90 gradi con il DUT in alto (mostrato nella Figura 2).

Il rig di estensione tele supporta il test di videocamere con una lunga distanza minima di messa a fuoco (telecamere). Il rig di estensione del teleobiettivo è avvitato al rig di base e la lunghezza può essere personalizzata in base ai requisiti di test della videocamera al momento dell'acquisto tramite i fornitori qualificati. La fotocamera ITS supporta distanze del grafico fino a 100 cm. Esistono due tipi di telecamere estensibili: il rig flexi-tele e il rig tele a lunghezza fissa. Il flexi-tele rig ti consente di eseguire test con varie distanze del grafico, mentre il rig a lunghezza fissa ti consente di eseguire test con una sola distanza del grafico. Il flexi-tele rig è disponibile a partire da marzo 2026.

Base modulare
Rev1.2

Figura 1. Rig di base modulare.

Modulare rev1.2
90deg

Figura 2. Supporto modulare ruotato di 90 gradi.

Flexi-Tele
rig

Figura 3. Supporti per estensioni Flexi-Tele dei nostri due fornitori approvati.

Cronologia revisioni

La tabella seguente descrive la cronologia delle revisioni del sistema di rig modulare e include i link di download a ogni versione dei file di produzione.

Data Revisione Download del file di produzione Log delle modifiche
Settembre 2024 1,2 Modular base rig rev1.2
  • (Settembre 2024) Include correzioni per un errore del file di produzione
  • (Luglio 2024) Release iniziale

Acquistare un sistema di rig modulare

Ti consigliamo di acquistare il sistema di rig modulare, il rig di estensione telescopica opzionale e gli accessori da uno dei seguenti fornitori qualificati.

  • Byte Bridge Inc.
    USA: 1502 Crocker Ave, Hayward, CA 94544-7037
    Cina: 22F #06-08, Hongwell International Plaza Tower A, 1600 West Zhongshan Road, Xuhui, Shanghai, 200235
    www.bytebt.com
    androidpartner@bytebt.com
    USA: +1-510-373-8899
    Cina: +86-400-8866-490

  • JFT CO LTD 捷富通科技有限公司 (precedentemente nota come MYWAY DESIGN)
    Cina: No. 40, Lane 22, Heai Road, Wujing Town, Minhang District, Shanghai, Cina
    Taiwan: 4F., No. 163, Fu-Ying Road, XinZhuang District, New Taipei City 242, Taiwan
    www.jftcoltd.com
    service@jfttec.com o its.sales@jfttec.com
    Cina:+86-021-64909136
    Taiwan: 886-2-29089060

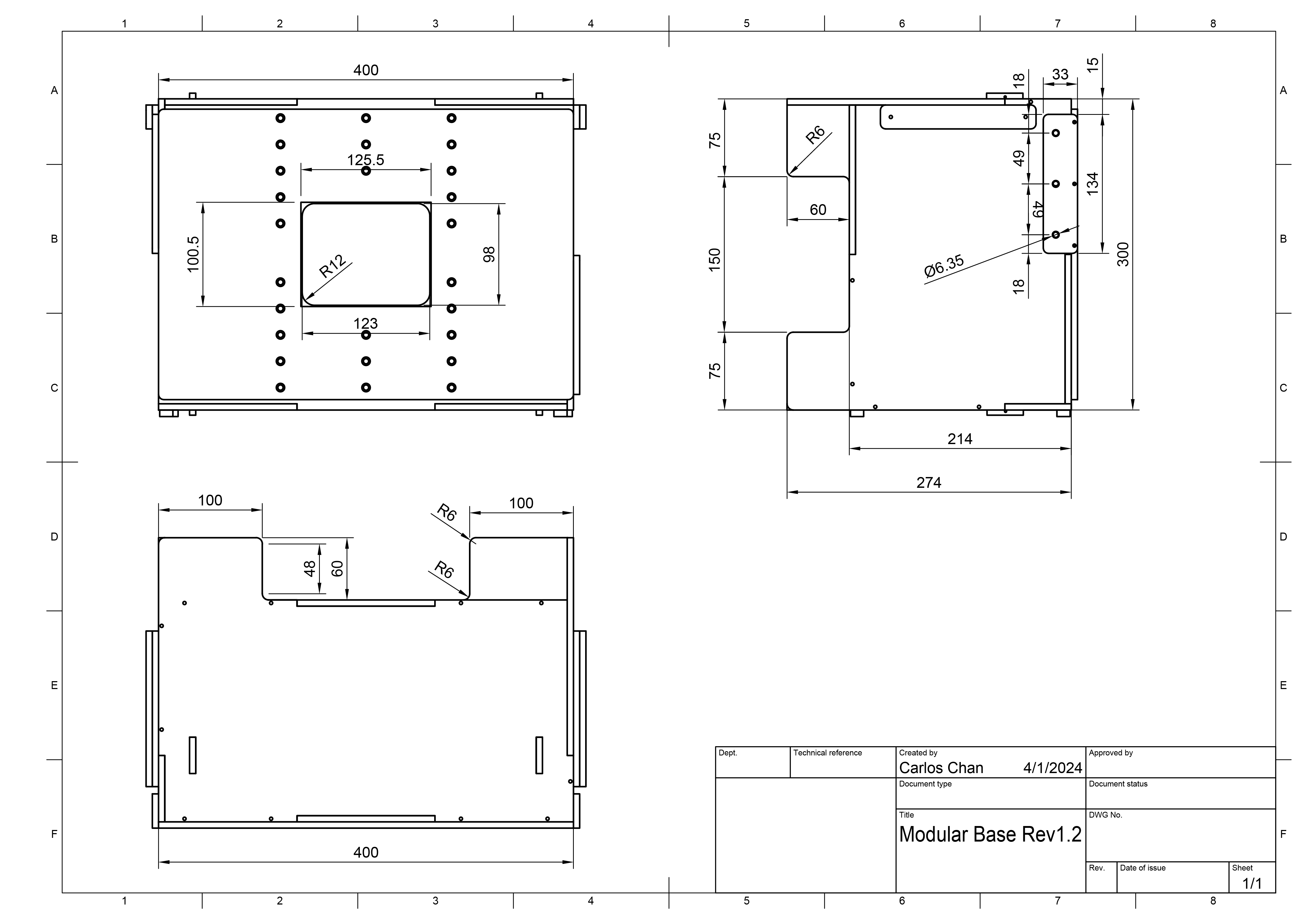
Disegni meccanici

Di seguito è riportato un disegno meccanico del rig di base modulare.

Disegno CAD della base modulare

Figura 4. Disegno meccanico del rig modulare di base

Configurazione della base di appoggio

Segui questi passaggi per configurare un rig modulare di base.

  1. Acquista un sistema di rig modulare da un fornitore qualificato.

  2. Assicurati di avere tutti i componenti nella tabella seguente (elementi mostrati nella Figura 4).

    Componente Quantità
    Supporto modulare di base 1
    Staffa di montaggio dello smartphone 2
    Staffa di montaggio del tablet 1
    Alimentatore 12 V (elencato da UL, 1 A minimo) 1
    Apertura 1

    Modular Base Rev1.2
Items

    Figura 5. Componenti modulari della base di montaggio.

  3. A seconda della configurazione, assicurati di avere gli accessori necessari nella tabella seguente (mostrata nella Figura 5). Questi accessori possono essere acquistati da un fornitore qualificato.

    Articolo Quantità
    Controller luci (può controllare fino a 3 rig) 1
    Alimentatore da 5 V per il controller dell'illuminazione 1
    Cavo coassiale CC che collega l'illuminazione al rig modulare di base 1
    Adattatore per cavo cilindrico CC (da 5,5 mm x 2,1 mm a 3,5 mm x 1,35 mm) 1
    Cavo da USB-A a USB 1
    Kit per dispositivi pieghevoli (se il DUT è un dispositivo pieghevole) 1

    Elementi modulari opzionali

    Figura 6. Elementi opzionali per il rig modulare di base.

  4. Assicurati che non ci siano perdite di luce eseguendo una delle seguenti operazioni:

    1. Crea un'apertura adatta al modulo della videocamera del DUT e assicurati che non ci siano perdite di luce (come mostrato nella Figura 6). Le aperture possono essere tagliate dai pannelli in schiuma forniti o configurate da un fornitore qualificato. Per un corretto orientamento della figura, i DUT con la fotocamera posteriore rivolta verso il rig vengono ruotati di 90° in senso antiorario, mentre i DUT con la fotocamera anteriore rivolta verso il rig vengono ruotati di 90° in senso orario. Assicurati che le aperture siano configurate di conseguenza.

    Posizionamento
    dell'apertura modulare Taglio
    apertura modulare

    Figura 7. Crea aperture per evitare la fuoriuscita di luce.

    1. Utilizza un drappo scuro per coprire il rig per evitare perdite di luce, senza aperture necessarie. (mostrato nella Figura 7).

    Modular Drapery

    Figura 8. Evitare la fuoriuscita di luce utilizzando un drappo.

  5. Installa un supporto per smartphone standard o pieghevole sul pannello di montaggio anteriore dello smartphone a un'altezza adeguata utilizzando un bullone e un dado in nylon come mostrato nella Figura 8.

    Installazione di apertura e supporto modulari

    Figura 9. Installazione dell'apertura e del supporto per lo smartphone.

  6. Installa il supporto per il tablet sul pannello di montaggio del tablet a un'altezza appropriata utilizzando un bullone e un dado in nylon.

  7. Monta il tablet del display e collegalo all'host come mostrato nella Figura 9. Fissa il tablet con un ventosa.

    Modular Tablet
Install

    Figura 10. Installazione del tablet.

  8. Per semplificare l'operazione sullo schermo, configura il DUT prima di montarlo.

  9. Monta il DUT e connettiti all'host.

  10. Allinea il DUT in modo che il centro del modulo della videocamera sia allineato (o molto vicino) al centro del tablet. Per regolare l'altezza, allenta i bulloni di montaggio dello smartphone e fai scorrere il supporto verso l'alto o verso il basso. Una volta allineato, fissa il DUT con il perno di montaggio.

    Installazione del DUT modulare

    Figura 11. Installazione del DUT.

  11. Per l'illuminazione, collega il cavo di illuminazione del rig di base a uno dei seguenti elementi:

    1. Alimentatore da 12 V

    Connessione modulare
    a 12 V

    Figura 12. Luce collegata all'alimentatore da 12 V.

    1. Controller luci (potrebbe essere necessario un adattatore)

    Collegamento del controller modulare

    Figura 13. Luce collegata al controller dell'illuminazione.

Dopo aver completato la configurazione del rig di base modulare, configura l'host e l'ambiente di test (Configura CTS). Per il file config.yml, utilizza la seguente configurazione:

  • chart\_distance = 22
  • lighting\_ch = [canale del controller collegato] o lascia invariato se non utilizzi un controller di illuminazione.

Configurazione del rig di estensione Flexi-Tele

Se hai acquistato il rig modulare prima di marzo 2026, potresti dover eseguire un piccolo adattamento per utilizzarlo con l'estensione flexi-tele. Questa modifica risolve il problema della piastra anteriore che blocca il campo visivo del teleobiettivo del DUT e può essere utilizzata anche con il rig di estensione del teleobiettivo a lunghezza fissa.

Segui questi passaggi per eseguire l'adattamento della base modulare.

  1. Rimuovi le quattro viti sulla parte superiore del rig che fissano la piastra anteriore, nonché le quattro viti inferiori.

    Modular Retrofit Remove
Screws

    Figura 14. Viti sul rig che tengono la piastra anteriore.

  2. (Facoltativo) Avvita o incolla la piastra di montaggio dello smartphone alla piastra anteriore in modo che le piastre si stacchino insieme.

    Piastre di bulloni di
retrofit modulari

    Figura 15. Bulloni per la piastra di montaggio dello smartphone e per la piastra anteriore.

  3. (Facoltativo) Se il tuo rig ha un cavo di alimentazione della luce dal basso verso l'alto collegato alla piastra frontale, spostalo sul lato con nastro isolante o fascette di serraggio.

    Cavo di riposizionamento per retrofit modulare

    Figura 16. Cavo di alimentazione della luce dal basso verso l'alto spostato lateralmente.

  4. Collega il rig della base modulare al rig dell'estensione flexi-tele.

Video dimostrativo

Questo è un video dimostrativo di come configurare il rig di estensione flexi-tele:

Configurazione del rig per telecamere con estensione fissa

Segui questi passaggi per configurare il rig di estensione tele opzionale.

  1. Acquista il rig di base modulare e il rig di estensione tele da un fornitore qualificato. Il rig può essere costruito utilizzando i file di produzione, ma questa operazione non è consigliata perché il taglio e l'assemblaggio devono essere precisi per garantire che il rig di estensione non abbia problemi di adattamento.

  2. Assicurati di avere un rig modulare funzionante e un rig di estensione tele (come mostrato nella Figura 13).

    Modular tele

    Figura 17. Supporto modulare con estensione telescopica.

  3. Rimuovi il pannello di montaggio dello smartphone rimuovendo a mano 6 bulloni in nylon (3 su ogni lato).

    Modular bolt
highlight Rimozione del bullone
modulare Pannello frontale modulare
off

    Figura 18. Rimozione a mano di 6 bulloni in nylon nell'area evidenziata.

  4. Posiziona il rig di base e il rig di estensione tele sulla superficie su cui vengono eseguiti i test. Per evitare di sollecitare i punti di montaggio, non consigliamo di spostare il rig assemblato.

  5. Posiziona il rig di estensione in modo che le 6 fessure della linguetta del rig di estensione siano allineate ai 6 fori del rig di base.

    Scheda Allineamento
modulare

    Figura 19. Allineamento delle fessure con i fori.

  6. Collega il rig di estensione al rig di base installando i 6 bulloni. Durante l'installazione delle viti, spingi delicatamente i due supporti l'uno contro l'altro per assicurarti che non ci siano spazi per le dispersioni di luce (chiedi aiuto a un collega se necessario). Stringi a mano i bulloni.

    Modular push
together

    Figura 20. Collegamento di rig di base ed estensioni.

  7. Configura l'apertura (o il drappeggio) e installa i supporti per smartphone e i DUT come descritto in Configurazione del rig di base.

    Scheda Allineamento
modulare

    Figura 21. Collegamento dei supporti per smartphone e del DUT.

Dopo aver completato la configurazione del rig di estensione, configura l'host e l'ambiente di test (Configura CTS). Per il file config.yml, utilizza la seguente configurazione:

  • chart_distance = [total distance from DUT to tablet]
  • lighting_ch = [connected control channel], or leave as is if not not using a lighting controller.

Disinstallare il rig dell'estensione

Per disinstallare il rig di estensione, segui i passaggi di installazione al contrario. Quando installi il pannello di montaggio del tablet, spingilo contro il supporto di base per assicurarti che non ci siano spazi per le infiltrazioni di luce (come mostrato nella Figura 17). Stringi a mano i bulloni.

Modular push
together

Figura 22. Spingere il pannello di montaggio del tablet contro il supporto di base.

Domande frequenti

Perché la scena viene ritagliata in un teleobiettivo?

Modular rig
crop

Figura 23. Scena ritagliata dalla piastra dello smartphone nel rig di base.

Ciò accade quando il campo visivo di un teleobiettivo è bloccato dalla piastra dello smartphone tra il rig di base e l'estensione del teleobiettivo. Prima di procedere con il test, assicurati di rimuovere la piastra dello smartphone con un cacciavite.

Piastra modulare del telefono
rimossa

Figura 24. Rimozione della piastra per lo smartphone nel supporto di base.

Perché le luci appaiono fioche o perché viene visualizzato un errore di convalida dell'illuminazione quando esegui ITS?

Questo errore viene attivato quando l'illuminazione del rig si attenua, il che può essere causato dall'alimentazione e dal degrado dei LED dovuto all'età o all'utilizzo oppure da un alimentatore difettoso. Per risolvere il problema, procedi nel seguente modo:

  1. Assicurati che l'illuminazione funzioni correttamente:

    • Sostituisci l'alimentatore (12 volt, min. 2 ampère, elencato da UL).
    • Sostituisci il LED (fai riferimento alla distinta materiali o contatta il fornitore per maggiori informazioni).
  2. Per assicurarti che il lux delle luci LED sia al livello appropriato (100-300), testalo utilizzando un misuratore digitale. (In questo esempio viene utilizzato il luxmetro YF-1065 di Contempo Views.) Posiziona il luxmetro sul lato del tablet e impostalo su 2000 lux per misurare la luce (mostrato nella Figura 21).

    YF-1065 di Contempo Views

    Figura 25. YF-1065 di Contempo Views.

    Luxmetro

    Figura 26. Luxmetro che misura la luce lateralmente con il supporto per il tablet.

  3. A seconda del valore di lux misurato, segui il passaggio appropriato:

    • Se la luce è al livello corretto, avvita le piastre anteriore e posteriore nel laccio.
    • Se la luce non è al livello corretto, verifica che il numero di parte del LED e dell'alimentatore sia corretto.

Aspetti a cui prestare attenzione

Di seguito sono riportati alcuni esempi di errori di produzione comuni che possono rendere i test instabili.

  • Pannello posteriore con fori per il tablet. Di conseguenza, il test find_circle non riesce a essere eseguito a causa dei cerchi aggiuntivi creati dai fori per le viti.

    Pannello posteriore con fori

    Figura 27. Pannello posteriore con fori.

  • Tasselli mancanti. In questo modo, i deflettori della luce scivolano fuori durante la spedizione.

    Spina mancante

    Figura 28. Spina mancante sul deflettore della luce.

  • Alimentatore non certificato UL. L'utilizzo di un alimentatore conforme allo standard UL soddisfa le specifiche indicate. Questo è importante per il funzionamento sicuro dell'illuminazione.

    Alimentatore elencato da UL

    Figura 29. Esempio di alimentatore con certificazione UL.

  • Viti allentate sul supporto per tablet o smartphone che non riescono a sostenere il peso di un tablet o uno smartphone. Di solito questo problema è causato da filettature danneggiate e indica che il foro deve essere rifilettato.

    Foro con filettature danneggiate

    Figura 30. Foro con filettatura danneggiata.