Modulares Rigg-System kaufen und einrichten

Das modulare Rig-System unterstützt die ITS-Testautomatisierung und besteht aus einer Kunststoffbox, die per CNC-Verfahren (Computerized Numerical Control) aus CAD-Zeichnungen (Computer-Aided Design) geschnitten wird, einem Chart-Tablet und einem zu testenden Gerät (Device Under Test, DUT). Das modulare Rigg-System besteht aus einem Basis-Rigg und einem optionalen Tele-Rigg. Das modulare Basis-Rig hat einen Diagrammabstand von 22 cm und kann Kameras von Mobilgeräten mit einem Sichtfeld von 60 bis 120 Grad testen. Mit dem Basis-Rig können Tests durchgeführt werden, bei denen das DUT um 90° gedreht und oben platziert wird (siehe Abbildung 2).

Mit dem Tele-Verlängerungsaufbau können Kameras mit einem langen Mindestfokusabstand (Telekameras) getestet werden. Die Tele-Verlängerung wird an der Basisvorrichtung angeschraubt. Die Länge kann beim Kauf über die qualifizierten Anbieter an Ihre Anforderungen für Kameratests angepasst werden. Camera ITS unterstützt Diagrammentfernungen von bis zu 100 cm. Es gibt zwei Arten von Tele-Verlängerungen: die flexible Tele-Verlängerung und die Tele-Verlängerung mit fester Länge. Mit dem flexiblen Tele-Rig können Sie Tests mit verschiedenen Entfernungen durchführen, während das Rig mit fester Länge nur Tests mit einer einzigen Entfernung ermöglicht. Das Flexi-Tele-Rig ist ab März 2026 verfügbar.

Modulare Basis
Rev1.2

Abbildung 1: Modulares Basis-Rig.

Modular rev1.2
90deg

Abbildung 2: Modulares Basis-Rig um 90 Grad gedreht.

Flexi-Tele-Rig

Abbildung 3: Flexi-Tele-Verlängerungssets von unseren beiden zugelassenen Anbietern.

Überarbeitungsverlauf

In der folgenden Tabelle wird der Revisionsverlauf des modularen Rigs beschrieben. Außerdem sind Downloadlinks zu den Produktionsdateien der einzelnen Versionen enthalten.

Datum Revision Download von Produktionsdateien Änderungsprotokoll
September 2024 1.2 Modular base rig rev1.2
  • (September 2024) Behebt einen Fehler in einer Produktionsdatei
  • (Juli 2024) Erste Version

Modulares Rigg-System kaufen

Wir empfehlen, das modulare Rigg-System, das optionale Tele-Verlängerungsrigg und das Zubehör bei einem der folgenden qualifizierten Anbieter zu kaufen.

  • Byte Bridge Inc.
    USA: 1502 Crocker Ave, Hayward, CA 94544-7037
    China: 22F #06-08, Hongwell International Plaza Tower A, 1600 West Zhongshan Road, Xuhui, Shanghai, 200235
    www.bytebt.com
    androidpartner@bytebt.com
    USA: +1-510-373-8899
    China: +86-400-8866-490

  • JFT CO LTD 捷富通科技有限公司 (previously known as MYWAY DESIGN)
    China: No. 40, Lane 22, Heai Road, Wujing Town, Minhang District, Shanghai, China
    Taiwan: 4F., No. 163, Fu-Ying Road, XinZhuang District, New Taipei City 242, Taiwan
    www.jftcoltd.com
    service@jfttec.com oder its.sales@jfttec.com
    China:+86-021-64909136
    Taiwan: +886-2-29089060

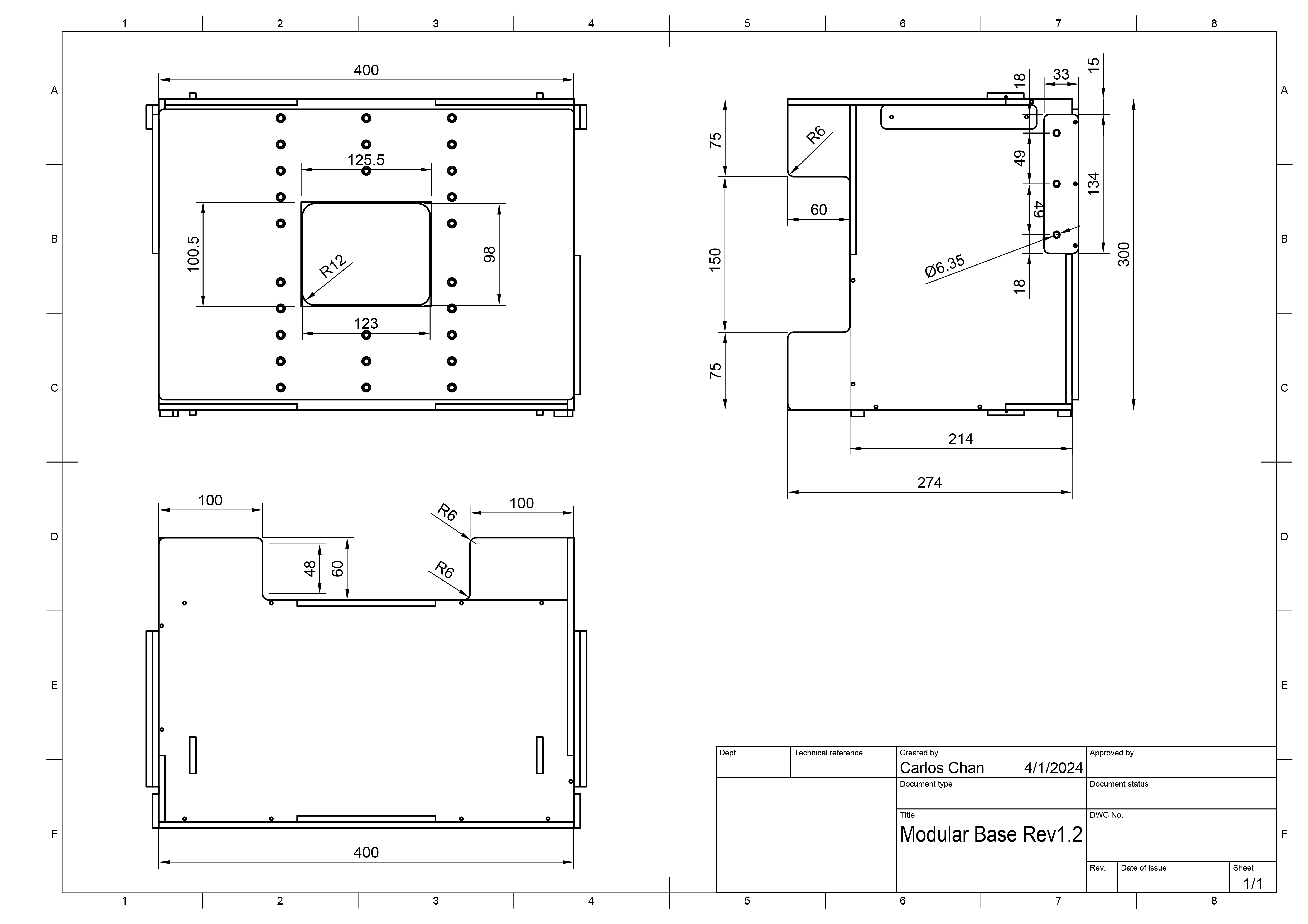
Technische Zeichnungen

Im Folgenden finden Sie eine technische Zeichnung des modularen Sockels.

CAD-Zeichnung der modularen Basis

Abbildung 4: Technische Zeichnung des modularen Basis-Rigs

Einrichtung des Basis-Rigs

So richten Sie ein modulares Basis-Rig ein:

  1. Kaufen Sie ein modulares Rig-System bei einem qualifizierten Anbieter.

  2. Prüfen Sie, ob Sie alle Komponenten aus der folgenden Tabelle haben (siehe Abbildung 4).

    Komponente Menge
    Modulares Basis-Rig 1
    Halterung für das Smartphone 2
    Tablethalterung 1
    12‑V-Netzteil (UL-gelistet, mindestens 1 A) 1
    Blende 1

    Modulare Basis Rev1.2
Artikel

    Abbildung 5: Modulare Komponenten für das Basis-Rig.

  3. Je nach Einrichtung müssen Sie die erforderlichen Zubehörteile aus der folgenden Tabelle (siehe Abbildung 5) haben. Dieses Zubehör kann bei einem qualifizierten Anbieter erworben werden.

    Artikel Menge
    Beleuchtungssteuerung (kann bis zu 3 Rigs steuern) 1
    5‑V-Netzteil für die Beleuchtungssteuerung 1
    Hohlsteckerkabel zum Verbinden der Beleuchtung mit dem modularen Sockel 1
    Adapter für DC-Hohlsteckerkabel (5,5 mm × 2,1 mm auf 3,5 mm × 1,35 mm) 1
    USB‑A-Kabel zu USB-Kabel 1
    Kit für faltbare Geräte (wenn das zu testende Gerät ein faltbares Gerät ist) 1

    Modulare optionale Elemente

    Abbildung 6 Optionale Elemente für das modulare Basis-Rig.

  4. Achten Sie darauf, dass kein Licht eindringt. Führen Sie dazu einen der folgenden Schritte aus:

    1. Fertigen Sie eine Blende an, die zum Kameramodul des Prüflings passt, und achten Sie darauf, dass kein Licht austritt (siehe Abbildung 6). Die Öffnungen können aus den mitgelieferten Schaumstoffplatten geschnitten oder von einem qualifizierten Anbieter konfiguriert werden. Für die richtige Ausrichtung der Abbildung werden Prüflinge, deren Rückkamera auf das Rig gerichtet ist, um 90° gegen den Uhrzeigersinn gedreht. Prüflinge, deren Frontkamera auf das Rig gerichtet ist, werden um 90° im Uhrzeigersinn gedreht. Achten Sie darauf, dass die Blenden entsprechend konfiguriert sind.

    Positionierung der modularen Blende Modulare Blende
    Schneiden

    Abbildung 7. Blenden anfertigen, um Lichtlecks zu vermeiden.

    1. Verwenden Sie ein dunkles Tuch, um das Rig abzudecken und Lichtlecks zu vermeiden. Es sind keine Blenden erforderlich. (siehe Abbildung 7).

    Modulare Vorhänge

    Abbildung 8. Lichtlecks mit einem Tuch verhindern

  5. Bringen Sie eine Standard- oder eine Halterung für Foldables mit einer Nylonschraube und ‑mutter in geeigneter Höhe an der vorderen Montageplatte an (siehe Abbildung 8).

    Modulare Blende und Halterung
Installieren

    Abbildung 9. Installation der Blende und der Smartphone-Halterung.

  6. Bringen Sie die Tablet-Halterung mit einem Nylonbolzen und einer Mutter in einer geeigneten Höhe an der Tablet-Montageplatte an.

  7. Bringen Sie das Display-Tablet an und verbinden Sie es wie in Abbildung 9 gezeigt mit dem Host. Befestige das Tablet mit einem Saugnapf.

    Modulares Tablet
Installieren

    Abbildung 10. Installation des Tablets

  8. Um die Bedienung auf dem Bildschirm zu erleichtern, richten Sie das zu testende Gerät ein, bevor Sie es anbringen.

  9. Bringen Sie das DUT an und stellen Sie eine Verbindung zum Host her.

  10. Richten Sie das Prüfgerät so aus, dass die Mitte des Kameramoduls mit der Mitte des Tablets übereinstimmt oder sich sehr nah an der Mitte des Tablets befindet. Lösen Sie die Schrauben der Smartphone-Halterung und schieben Sie die Halterung nach oben oder unten, um die Höhe anzupassen. Richten Sie das Gerät aus und befestigen Sie es mit dem Halterungsstift.

    Modulares Testobjekt
installieren

    Abbildung 11. Installation des Testgeräts

  11. Verbinden Sie das Beleuchtungskabel vom Basis-Rig mit einem der folgenden Geräte:

    1. 12‑V-Netzteil

    Modulare 12‑V-Verbindung

    Abbildung 12. Lampe, die an eine 12‑V-Stromversorgung angeschlossen ist.

    1. Lichtsteuerung (möglicherweise ist ein Adapter erforderlich)

    Modulcontroller-Verbindung

    Abbildung 13. Lampe, die mit dem Beleuchtungscontroller verbunden ist.

Wenn Sie die Einrichtung des modularen Basis-Rigs abgeschlossen haben, richten Sie die Host- und Testumgebung ein (CTS einrichten). Verwenden Sie für die Datei config.yml die folgende Konfiguration:

  • chart\_distance = 22
  • lighting\_ch = [connected controller channel] oder unverändert lassen, wenn kein Beleuchtungscontroller verwendet wird.

Flexi-Tele-Erweiterung einrichten

Wenn du das modulare Basis-Rig vor März 2026 gekauft hast, musst du es möglicherweise etwas nachrüsten, damit es mit der Flexi-Tele-Verlängerung funktioniert. Durch diese Änderung wird das Problem behoben, dass die Frontplatte das Sichtfeld des Teleobjektivs des Prüflings blockiert. Sie kann auch mit dem Tele-Verlängerungsrig mit fester Länge verwendet werden.

So rüsten Sie die modulare Basisvorrichtung nach:

  1. Entferne die vier Schrauben oben am Rig, mit denen die Frontplatte befestigt ist, sowie die vier Schrauben unten.

    Modulares Nachrüsten – Schrauben entfernen

    Abbildung 14. Schrauben am Rig, mit denen die Frontplatte befestigt ist.

  2. Optional: Befestigen Sie die Smartphone-Montageplatte mit einer Schraube oder mit Kleber an der Frontplatte, sodass sich die Platten zusammen abnehmen lassen.

    Modulare Nachrüst-Schraubplatten

    Abbildung 15. Schrauben für die Smartphone-Halterung und die Frontplatte.

  3. Optional: Wenn an der Frontplatte ein Stromkabel für die Beleuchtung angebracht ist, das von unten nach oben verläuft, verlegen Sie es mit Isolierband oder Kabelbindern an die Seite.

    Modulares Nachrüsten – Kabel verlegen

    Abbildung 16. Das Stromkabel für die Beleuchtung von unten nach oben wurde an die Seite verlegt.

  4. Verbinde die modulare Basis-Rig mit der flexiblen Teleskop-Verlängerung.

Video-Demo

In diesem Video wird gezeigt, wie das Flexi-Tele-Rig eingerichtet wird:

Einrichtung eines Tele-Extender-Rigs mit fester Länge

So richten Sie das optionale Tele-Verlängerungsrig ein:

  1. Kaufen Sie das modulare Basis-Rig und das Tele-Verlängerungs-Rig bei einem qualifizierten Anbieter. Das Rig kann mit den Produktionsdateien erstellt werden. Das wird jedoch nicht empfohlen, da die Zuschnitte und die Montage präzise sein müssen, damit das Verlängerungs-Rig keine Passungsprobleme hat.

  2. Sie benötigen ein funktionierendes modulares Basis-Rig und ein Tele-Extension-Rig (siehe Abbildung 13).

    Modulares Tele

    Abbildung 17. Modulares Basis-Rig mit Tele-Verlängerung.

  3. Entfernen Sie die Smartphone-Halterung, indem Sie 6 Nylonschrauben (3 auf jeder Seite) mit der Hand lösen.

    Modulare Schraube
hervorgehoben Entfernen der modularen Schraube Modulare Frontplatte abgenommen

    Abbildung 18. Entfernen Sie die sechs Nylonbolzen im markierten Bereich mit der Hand.

  4. Stellen Sie die Basis- und die Tele-Extension-Rigs auf die Oberfläche, auf der die Tests durchgeführt werden. Um die Befestigungspunkte nicht zu belasten, empfehlen wir, das montierte Rig nicht zu bewegen.

  5. Setzen Sie die Verlängerung so ein, dass die 6 Schlitze auf der Lasche der Verlängerung mit den 6 Löchern auf der Basisvorrichtung übereinstimmen.

    Tab „Modulare Ausrichtung“

    Abbildung 19. Schlitze mit Löchern ausrichten.

  6. Befestigen Sie die Verlängerung am Basis-Rig, indem Sie die 6 Schrauben anbringen. Drücken Sie die beiden Rigs beim Anbringen der Schrauben vorsichtig zusammen, um sicherzustellen, dass keine Lücken für Lichtlecks vorhanden sind. Bitten Sie bei Bedarf einen Kollegen um Hilfe. Ziehen Sie die Schrauben von Hand fest.

    Modulares Zusammenschieben

    Abbildung 20. Anbringen von Basis- und Erweiterungs-Rigs

  7. Konfigurieren Sie die Blende (oder den Vorhang) und installieren Sie die Smartphone-Halterungen und Prüflinge wie in Einrichtung des Basis-Rigs beschrieben.

    Tab „Modulare Ausrichtung“

    Abbildung 21. Anbringen von Smartphone-Halterungen und des zu testenden Geräts

Wenn Sie die Einrichtung des Erweiterungs-Rigs abgeschlossen haben, richten Sie die Host- und Testumgebung ein (CTS einrichten). Verwenden Sie für die Datei config.yml die folgende Konfiguration:

  • chart_distance = [Gesamtdistanz vom DUT zum Tablet]
  • lighting_ch = [verbundener Steuerkanal] oder unverändert lassen, wenn kein Beleuchtungscontroller verwendet wird.

Erweiterungs-Rig deinstallieren

Wenn Sie das Erweiterungs-Rig deinstallieren möchten, führen Sie die Installationsschritte in umgekehrter Reihenfolge aus. Drücken Sie beim Anbringen der Tablet-Montageplatte die Platte gegen die Basis, damit keine Lücken entstehen, durch die Licht eindringen kann (siehe Abbildung 17). Ziehen Sie die Schrauben von Hand fest.

Modulares Zusammenschieben

Abbildung 22. Drücken Sie die Tablet-Halterung gegen die Basis.

Häufig gestellte Fragen

Warum wird die Szene bei einer Tele-Kamera zugeschnitten?

Modulares Rig
Zuschneiden

Abbildung 23. Szene, die durch die Smartphone-Halterung im Basis-Rig beschnitten wird

Das passiert, wenn das Sichtfeld eines Teleobjektivs durch die Smartphone-Platte zwischen dem Basis-Rig und der Tele-Verlängerung blockiert wird. Entfernen Sie die Telefonplatte mit einem Schraubenzieher, bevor Sie mit dem Test fortfahren.

Modulare Telefonplatte entfernt

Abbildung 24. Entfernen der Smartphone-Halterung aus dem Basis-Rig

Warum erscheinen die Lichter bei ITS-Tests schwach oder warum wird ein Fehler bei der Beleuchtung angezeigt?

Dieser Fehler wird ausgelöst, wenn die Beleuchtung im Rig dunkler wird. Das kann an der Stromversorgung und dem Verschleiß der LEDs durch Alter oder Nutzung oder an einer fehlerhaften Stromversorgung liegen. Führen Sie die folgenden Schritte aus, um das Problem zu beheben:

  1. Prüfen Sie, ob die Beleuchtung richtig funktioniert:

    • Ersetzen Sie das Netzteil (UL-gelistet, 12 Volt, mindestens 2 Ampere).
    • Tauschen Sie die LED aus (siehe Stückliste oder wenden Sie sich an den Anbieter, um weitere Informationen zu erhalten).
  2. Prüfen Sie mit einem digitalen Messgerät, ob die Lux-Werte der LED-Leuchten im richtigen Bereich (100–300) liegen. In diesem Beispiel wird das Luxmeter YF-1065 von Contempo Views verwendet. Legen Sie das Lichtmessgerät auf die Tablet-Seite und stellen Sie es auf 2.000 Lux ein, um das Licht zu messen (siehe Abbildung 21).

    YF-1065 von Contempo Views

    Abbildung 25. YF-1065 von Contempo Views.

    Lux meter

    Abbildung 26. Ein Luxmeter misst das Licht von der Seite mit der Tablet-Halterung.

  3. Führen Sie je nach gemessenem Luxwert den entsprechenden Schritt aus:

    • Wenn die Lampe auf der richtigen Höhe ist, schraube die vordere und hintere Platte fest.
    • Wenn das Licht nicht die richtige Helligkeit hat, prüfen Sie, ob die Teilenummer der LED und des Netzteils korrekt ist.

Worauf Sie achten sollten

Im Folgenden finden Sie Beispiele für häufige Herstellungsfehler, die dazu führen können, dass Tests nicht zuverlässig ausgeführt werden.

  • Rückseite mit Löchern für das Tablet. Dies führt dazu, dass der Test find_circle aufgrund der zusätzlichen Kreise, die durch die Schraubenlöcher entstehen, fehlschlägt.

    Rückwand mit Löchern

    Abbildung 27. Rückseite mit Löchern.

  • Dübel fehlen. Dadurch können die Lichtblenden während des Versands herausrutschen.

    Dübel fehlt

    Abbildung 28. Fehlender Dübel an der Lichtblende.

  • Nicht UL-gelistetes Netzteil. Die Verwendung eines UL-gelisteten Netzteils entspricht den angegebenen Spezifikationen. Das ist wichtig für einen sicheren Betrieb der Beleuchtung.

    UL-gelistetes Netzteil

    Abbildung 29. Beispiel für ein UL-gelistetes Netzteil

  • Durchrutschende Schrauben an der Tablet- oder Smartphone-Halterung, die das Gewicht eines Tablets oder Smartphones nicht tragen können. Dies wird in der Regel durch beschädigte Gewinde verursacht und deutet darauf hin, dass das Loch neu geschnitten werden muss.

    Loch mit beschädigten Gewinden

    Abbildung 30. Bohrung mit beschädigtem Gewinde.