মডিউলার রিগ সিস্টেমটি আইটিএস (ITS) টেস্ট অটোমেশনকে সমর্থন করে এবং এটি কম্পিউটার-এইডেড ডিজাইন (CAD) ড্রয়িং থেকে কম্পিউটারাইজড নিউমেরিক্যাল কন্ট্রোল (CNC) দ্বারা কাটা একটি প্লাস্টিকের বাক্স, একটি চার্ট ট্যাবলেট এবং একটি পরীক্ষাধীন ডিভাইস (DUT) নিয়ে গঠিত। মডিউলার রিগ সিস্টেমটিতে একটি বেস রিগ এবং একটি ঐচ্ছিক টেলি এক্সটেনশন রিগ থাকে। মডিউলার বেস রিগটির চার্ট দূরত্ব ২২ সেমি এবং এটি ৬০ ডিগ্রি থেকে ১২০ ডিগ্রি পর্যন্ত ফিল্ড অফ ভিউ (FoV) সহ মোবাইল ডিভাইসের ক্যামেরা পরীক্ষা করতে পারে। বেস রিগটি ডিইউটি (DUT) উপরে রেখে ৯০ ডিগ্রি ঘুরিয়েও পরীক্ষা সম্পাদন করতে পারে (চিত্র ২-এ দেখানো হয়েছে)।
টেলি এক্সটেনশন রিগ সেইসব ক্যামেরা পরীক্ষা করতে সহায়তা করে যেগুলোর ন্যূনতম ফোকাস দূরত্ব বেশি (টেলিফটো ক্যামেরা)। টেলি এক্সটেনশন রিগটি বেস রিগের সাথে বোল্ট দিয়ে লাগানো হয় এবং যোগ্য বিক্রেতাদের কাছ থেকে কেনার সময় আপনার ক্যামেরা পরীক্ষার প্রয়োজন অনুযায়ী এর দৈর্ঘ্য কাস্টমাইজ করা যায়। ক্যামেরা আইটিএস ১০০ সেমি পর্যন্ত চার্ট দূরত্ব সমর্থন করে। দুই ধরনের টেলি এক্সটেনশন রিগ রয়েছে, ফ্লেক্সি-টেলি রিগ এবং নির্দিষ্ট দৈর্ঘ্যের টেলি রিগ। ফ্লেক্সি-টেলি রিগ আপনাকে বিভিন্ন চার্ট দূরত্বে পরীক্ষা করার সুযোগ দেয়, যেখানে নির্দিষ্ট দৈর্ঘ্যের রিগটি আপনাকে শুধুমাত্র একটি নির্দিষ্ট চার্ট দূরত্বে পরীক্ষা করার সুযোগ দেয়। ফ্লেক্সি-টেলি রিগটি মার্চ ২০২৬ থেকে পাওয়া যাবে।

চিত্র ১. মডিউলার বেস রিগ।

চিত্র ২. মডুলার বেস রিগটি ৯০ ডিগ্রি ঘোরানো হয়েছে।

চিত্র ৩. আমাদের অনুমোদিত দুইজন সরবরাহকারীর ফ্লেক্সি-টেলি এক্সটেনশন রিগ।
সংশোধনের ইতিহাস
নিম্নোক্ত সারণিতে মডিউলার রিগ সিস্টেমের সংশোধন ইতিহাস বর্ণনা করা হয়েছে এবং এতে প্রোডাকশন ফাইলগুলোর প্রতিটি সংস্করণের ডাউনলোড লিঙ্ক অন্তর্ভুক্ত রয়েছে।
| তারিখ | সংশোধন | প্রোডাকশন ফাইল ডাউনলোড | পরিবর্তন লগ |
|---|---|---|---|
| সেপ্টেম্বর ২০২৪ | ১.২ | মডুলার বেস রিগ রিভিশন ১.২ |
|
একটি মডুলার রিগ সিস্টেম কিনুন
আমরা নিম্নলিখিত যোগ্য বিক্রেতাদের যেকোনো একটি থেকে মডিউলার রিগ সিস্টেম, ঐচ্ছিক টেলি এক্সটেনশন রিগ এবং আনুষঙ্গিক সরঞ্জাম ক্রয় করার সুপারিশ করছি।
বাইট ব্রিজ ইনকর্পোরেটেড।
USA: 1502 Crocker Ave, Hayward, CA 94544-7037
চীন: ২২এফ #০৬-০৮, হংওয়েল ইন্টারন্যাশনাল প্লাজা টাওয়ার এ, ১৬০০ পশ্চিম ঝংশান রোড, শুহুই, সাংহাই, ২০০২৩৫
www.bytebt.com
androidpartner@bytebt.com
মার্কিন যুক্তরাষ্ট্র: +1-510-373-8899
চীন: +86-400-8866-490JFT CO LTD 捷富通科技有限公司 (আগে MYWAY DESIGN নামে পরিচিত)
চীন: নং 40, লেন 22, হেই রোড, উজিং টাউন, মিনহাং জেলা, সাংহাই, চীন
তাইওয়ান: 4F., নং 163, ফু-ইং রোড, জিনঝুয়াং জেলা, নিউ তাইপেই সিটি 242, তাইওয়ান
www.jftcoltd.com
service@jfttec.com অথবা its.sales@jfttec.com
চীন: +৮৬-০২১-৬৪৯০৯১৩৬
তাইওয়ান: 886-2-29089060
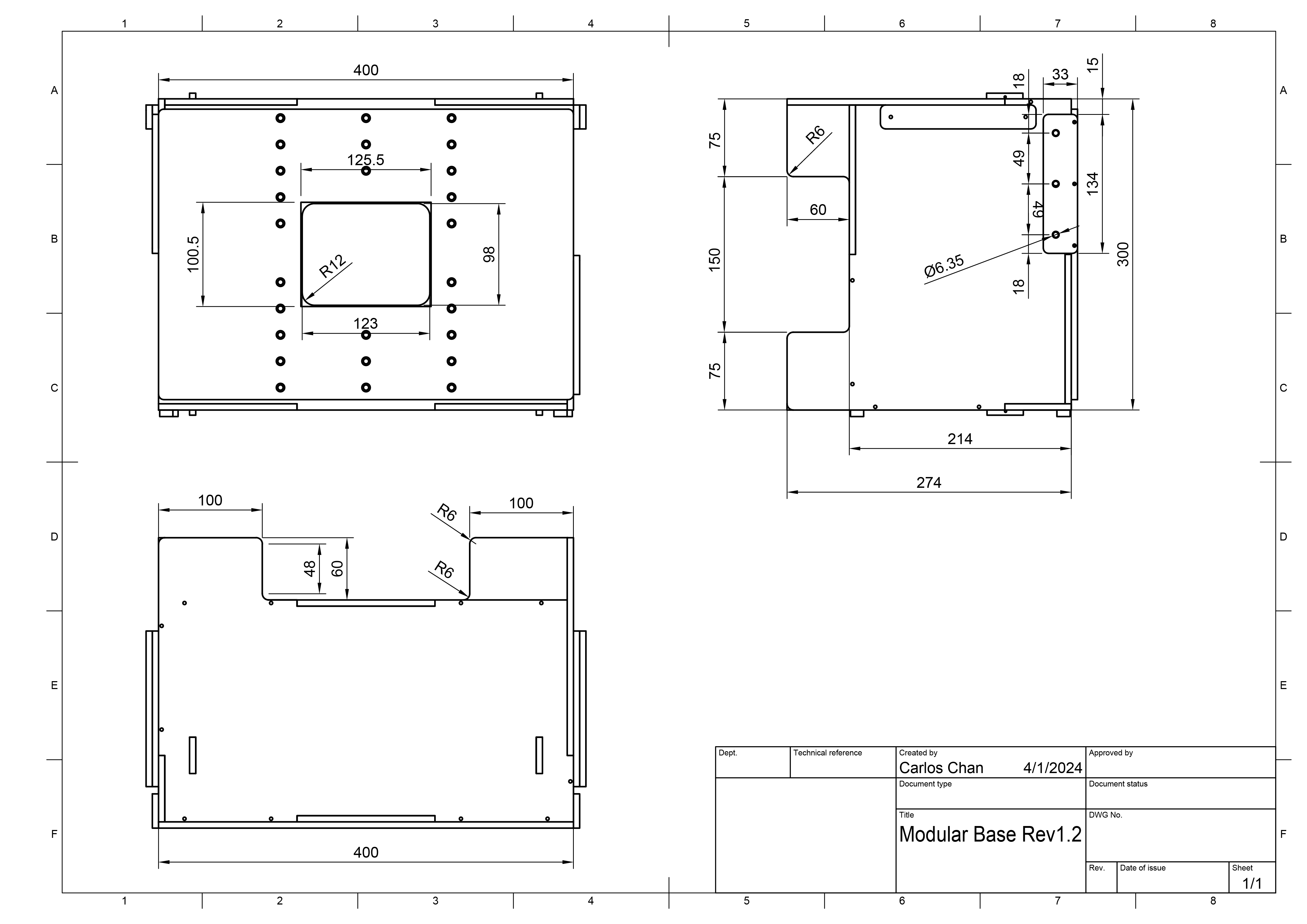
যান্ত্রিক অঙ্কন
নিম্নে মডিউলার বেস রিগটির একটি যান্ত্রিক নকশা দেওয়া হলো।

চিত্র ৪. মডিউলার বেস রিগের যান্ত্রিক নকশা
বেস রিগ সেটআপ
একটি মডিউলার বেস রিগ সেট আপ করতে এই ধাপগুলো অনুসরণ করুন।
একজন যোগ্য বিক্রেতার কাছ থেকে একটি মডিউলার রিগ সিস্টেম ক্রয় করুন।
নিশ্চিত করুন যে নিম্নলিখিত সারণিতে থাকা সমস্ত উপাদান আপনার কাছে আছে (চিত্র ৪-এ দেখানো আইটেমগুলো)।
উপাদান পরিমাণ মডুলার বেস রিগ ১ ফোন মাউন্ট ব্র্যাকেট ২ ট্যাবলেট মাউন্ট ব্র্যাকেট ১ ১২ ভোল্ট পাওয়ার সাপ্লাই (ইউএল তালিকাভুক্ত, সর্বনিম্ন ১ অ্যাম্পিয়ার) ১ অ্যাপারচার ১ 
চিত্র ৫. মডিউলার বেস রিগের উপাদানসমূহ।
আপনার সেটআপের উপর নির্ভর করে, নিচের সারণিতে (চিত্র ৫-এ দেখানো) প্রয়োজনীয় আনুষঙ্গিক সরঞ্জামগুলো আপনার কাছে আছে কিনা তা নিশ্চিত করুন। এই আনুষঙ্গিক সরঞ্জামগুলো একজন যোগ্য বিক্রেতার কাছ থেকে কেনা যেতে পারে।
আইটেম পরিমাণ লাইটিং কন্ট্রোলার (সর্বোচ্চ ৩টি রিগ নিয়ন্ত্রণ করতে পারে) ১ লাইটিং কন্ট্রোলারের জন্য ৫ ভোল্টের পাওয়ার সাপ্লাই ১ মডুলার বেস রিগের সাথে লাইটিং সংযোগকারী ডিসি ব্যারেল ক্যাবল ১ ডিসি ব্যারেল ক্যাবল অ্যাডাপ্টার (৫.৫ মিমি x ২.১ মিমি থেকে ৩.৫ মিমি x ১.৩৫ মিমি) ১ ইউএসবি এ কেবল থেকে ইউএসবি কেবল ১ ভাঁজযোগ্য কিট (যদি DUT একটি ভাঁজযোগ্য ডিভাইস হয়) ১ 
চিত্র ৬. মডিউলার বেস রিগের জন্য ঐচ্ছিক সামগ্রী।
নিম্নলিখিতগুলির মধ্যে যেকোনো একটি করে আলোর ছিদ্র বন্ধ করুন:
- DUT-এর ক্যামেরা মডিউলের সাথে মানানসই একটি অ্যাপারচার তৈরি করুন এবং নিশ্চিত করুন যেন কোনো আলো বাইরে না যায় (যেমনটি চিত্র ৬-এ দেখানো হয়েছে)। অ্যাপারচারগুলো সরবরাহকৃত ফোম বোর্ড থেকে কেটে নেওয়া যেতে পারে অথবা কোনো যোগ্যতাসম্পন্ন বিক্রেতার দ্বারা কনফিগার করিয়ে নেওয়া যেতে পারে। সঠিক আকৃতি বিন্যাসের জন্য, যে DUT-গুলোর পেছনের ক্যামেরা রিগের দিকে মুখ করে থাকে সেগুলোকে ঘড়ির কাঁটার বিপরীত দিকে ৯০° ঘোরানো হয় এবং যে DUT-গুলোর সামনের ক্যামেরা রিগের দিকে মুখ করে থাকে সেগুলোকে ঘড়ির কাঁটার দিকে ৯০° ঘোরানো হয়। নিশ্চিত করুন যে অ্যাপারচারগুলো সেই অনুযায়ী কনফিগার করা হয়েছে।


চিত্র ৭. আলোর নিঃসরণ রোধ করার জন্য ছিদ্রপথ তৈরি করুন।
- আলোর বিচ্ছুরণ রোধ করতে রিগটি একটি গাঢ় রঙের পর্দা দিয়ে ঢেকে দিন, কোনো অ্যাপারচারের প্রয়োজন নেই। (চিত্র ৭-এ দেখানো হয়েছে)।

চিত্র ৮. পর্দা ব্যবহার করে আলোর প্রবেশ রোধ করা।
চিত্র ৮-এ দেখানো অনুযায়ী, একটি নাইলন বোল্ট ও নাট ব্যবহার করে সামনের ফোন মাউন্টিং প্যানেলে উপযুক্ত উচ্চতায় একটি স্ট্যান্ডার্ড ফোন মাউন্ট অথবা একটি ফোল্ডেবল ফোন মাউন্ট ইনস্টল করুন।

চিত্র ৯। অ্যাপারচার ও ফোন মাউন্ট স্থাপন।
একটি নাইলন বোল্ট ও নাট ব্যবহার করে ট্যাবলেট মাউন্টিং প্যানেলে ট্যাবলেট মাউন্টটি উপযুক্ত উচ্চতায় স্থাপন করুন।
চিত্র ৯-এ দেখানো অনুযায়ী ডিসপ্লে ট্যাবলেটটি মাউন্ট করুন এবং হোস্টের সাথে সংযুক্ত করুন। একটি প্লাঞ্জার দিয়ে ট্যাবলেটটি সুরক্ষিত করুন।

চিত্র ১০. ট্যাবলেট স্থাপন।
অন-স্ক্রিন অপারেশন সহজ করার জন্য, DUT মাউন্ট করার আগেই আপনার DUT সেট আপ করে নিন ।
DUT মাউন্ট করুন এবং হোস্টের সাথে সংযোগ করুন।
DUT-টিকে এমনভাবে সারিবদ্ধ করুন যাতে ক্যামেরা মডিউলের কেন্দ্র ট্যাবলেটের কেন্দ্রের সাথে একই সরলরেখায় (বা খুব কাছাকাছি) থাকে। উচ্চতা সামঞ্জস্য করতে, ফোন মাউন্টিং বোল্টগুলো ঢিলা করুন এবং মাউন্টটিকে উপরে বা নীচে স্লাইড করুন। সারিবদ্ধ হয়ে গেলে, মাউন্ট প্লাঞ্জার দিয়ে DUT-টিকে সুরক্ষিত করুন।

চিত্র ১১. ডিইউটি স্থাপন।
আলোর জন্য, বেস রিগ থেকে লাইটিং ক্যাবলটি নিম্নলিখিতগুলির মধ্যে যেকোনো একটির সাথে সংযুক্ত করুন:
- ১২ ভোল্ট বিদ্যুৎ সরবরাহ

চিত্র ১২। ১২ ভোল্ট বিদ্যুৎ সরবরাহের সাথে সংযুক্ত বাতি।
- লাইটিং কন্ট্রোলার (অ্যাডাপ্টারের প্রয়োজন হতে পারে)

চিত্র ১৩। আলোক নিয়ন্ত্রকের সাথে সংযুক্ত বাতি।
যখন আপনি মডিউলার বেস রিগের সেটআপ সম্পন্ন করবেন, তখন হোস্ট এবং টেস্ট এনভায়রনমেন্ট সেট আপ করুন ( CTS সেট আপ করুন )। config.yml ফাইলের জন্য, নিম্নলিখিত কনফিগারেশনটি ব্যবহার করুন:
-
chart\_distance= ২২ -
lighting\_ch= [সংযুক্ত কন্ট্রোলার চ্যানেল], অথবা লাইটিং কন্ট্রোলার ব্যবহার না করলে অপরিবর্তিত রাখুন।
ফ্লেক্সি-টেলি এক্সটেনশন রিগ সেটআপ
যদি আপনি মার্চ ২০২৬-এর আগে মডিউলার বেস রিগটি কিনে থাকেন, তাহলে ফ্লেক্সি-টেলি এক্সটেনশনের সাথে কাজ করার জন্য আপনাকে একটি ছোট রেট্রোফিটিং করতে হতে পারে। এই পরিবর্তনটি ডিইউটি-এর টেলি ক্যামেরার ফিল্ড অফ ভিউতে ফ্রন্ট-প্লেটের বাধা দেওয়ার সমস্যাটি সমাধান করে এবং এটি নির্দিষ্ট দৈর্ঘ্যের টেলি এক্সটেনশন রিগের সাথেও ব্যবহার করা যায়।
মডিউলার বেস রিগটি রেট্রোফিট করতে এই ধাপগুলো অনুসরণ করুন।
রিগের উপরের দিকে সামনের প্লেটটিকে ধরে রাখা চারটি স্ক্রু এবং নিচের চারটি স্ক্রু খুলে ফেলুন।

চিত্র ১৪। রিগের সামনের প্লেটটিকে ধরে রাখা স্ক্রুগুলো।
(ঐচ্ছিক) ফোন-মাউন্টিং প্লেটটিকে ফ্রন্ট-প্লেটের সাথে এমনভাবে বোল্ট বা আঠা দিয়ে লাগিয়ে দিন, যাতে প্লেট দুটি একসাথে খুলে আসে।

চিত্র ১৫। ফোন-মাউন্টিং প্লেট এবং ফ্রন্ট প্লেটের বোল্টসমূহ।
(ঐচ্ছিক) যদি আপনার রিগের সামনের প্লেটের সাথে নিচ থেকে ওপর পর্যন্ত বিস্তৃত কোনো লাইটের পাওয়ার ক্যাবল সংযুক্ত থাকে, তবে ইলেকট্রিক্যাল টেপ বা জিপ-টাই ব্র্যাকেট ব্যবহার করে সেটিকে পাশে সরিয়ে নিন।

চিত্র ১৬। নিচ থেকে উপরের লাইটের পাওয়ার ক্যাবলটি পাশে সরিয়ে নেওয়া হয়েছে।
মডিউলার বেস রিগটিকে ফ্লেক্সি-টেলি এক্সটেনশন রিগের সাথে সংযুক্ত করুন।
ভিডিও ডেমো
ফ্লেক্সি-টেলি এক্সটেনশন রিগটি কীভাবে সেট আপ করতে হয়, এটি তার একটি ভিডিও প্রদর্শনী:
নির্দিষ্ট দৈর্ঘ্যের টেলি এক্সটেনশন রিগ সেটআপ
ঐচ্ছিক টেলি এক্সটেনশন রিগটি সেট আপ করতে এই ধাপগুলো অনুসরণ করুন।
একজন যোগ্য বিক্রেতার কাছ থেকে মডিউলার বেস রিগ এবং টেলি এক্সটেনশন রিগ ক্রয় করুন। প্রোডাকশন ফাইল ব্যবহার করে রিগটি তৈরি করা যেতে পারে, কিন্তু এটি সুপারিশ করা হয় না, কারণ এক্সটেনশন রিগটির ফিটিং-এ কোনো সমস্যা না থাকে তা নিশ্চিত করার জন্য কাটিং এবং অ্যাসেম্বলি নির্ভুল হতে হবে।
নিশ্চিত করুন যে আপনার কাছে একটি কার্যকর মডিউলার বেস রিগ এবং একটি টেলি এক্সটেনশন রিগ আছে (যেমনটি চিত্র ১৩-এ দেখানো হয়েছে)।

চিত্র ১৭। টেলি এক্সটেনশন সহ মডুলার বেস রিগ।
ফোন মাউন্টিং প্যানেলটি সরানোর জন্য, প্রতি পাশে ৩টি করে মোট ৬টি নাইলন বোল্ট হাত দিয়ে খুলে ফেলুন।



চিত্র ১৮। চিহ্নিত স্থান থেকে হাত দিয়ে ৬টি নাইলন বোল্ট খোলা হচ্ছে।
যে পৃষ্ঠে পরীক্ষাগুলো করা হবে, সেখানে বেস রিগ এবং টেলি এক্সটেনশন রিগটি রাখুন। মাউন্টিং পয়েন্টগুলোর উপর চাপ এড়ানোর জন্য, আমরা একত্রিত রিগটি নাড়াচাড়া করার পরামর্শ দিই না।
এক্সটেনশন রিগটি এমনভাবে যথাস্থানে রাখুন যাতে এর ট্যাবের ৬টি স্লট বেস রিগের ৬টি ছিদ্রের সাথে মিলে যায়।

চিত্র ১৯। ছিদ্রের সাথে খাঁজ মেলানো।
৬টি বোল্ট লাগিয়ে এক্সটেনশন রিগটিকে বেস রিগের সাথে সংযুক্ত করুন। স্ক্রুগুলো লাগানোর সময়, আলো বের হওয়ার কোনো ফাঁক যেন না থাকে তা নিশ্চিত করতে দুটি রিগকে আলতোভাবে একসাথে চাপ দিন (প্রয়োজনে সহকর্মীর সাহায্য নিন)। বোল্টগুলো হাত দিয়ে শক্ত করে আঁটুন।

চিত্র ২০। ভিত্তি ও সম্প্রসারণ কাঠামো সংযুক্ত করা।
বেস রিগ সেটআপ- এ বর্ণিত পদ্ধতি অনুযায়ী অ্যাপারচার (বা ড্রেপারি) কনফিগার করুন এবং ফোন মাউন্ট ও ডিইউটি ইনস্টল করুন।

চিত্র ২১। ফোন মাউন্ট এবং ডিইউটি সংযুক্ত করা।
এক্সটেনশন রিগের সেটআপ সম্পন্ন হলে, হোস্ট এবং টেস্ট এনভায়রনমেন্ট সেট আপ করুন ( CTS সেট আপ করুন )। config.yml ফাইলের জন্য, নিম্নলিখিত কনফিগারেশনটি ব্যবহার করুন:
-
chart_distance= [DUT থেকে ট্যাবলেট পর্যন্ত মোট দূরত্ব] -
lighting_ch= [সংযুক্ত কন্ট্রোল চ্যানেল], অথবা লাইটিং কন্ট্রোলার ব্যবহার না করলে যেমন আছে তেমনই রাখুন।
এক্সটেনশন রিগ আনইনস্টল করুন
এক্সটেনশন রিগটি আনইনস্টল করতে, ইনস্টলেশনের ধাপগুলো উল্টোভাবে অনুসরণ করুন। ট্যাবলেট মাউন্টিং প্যানেলটি ইনস্টল করার সময়, প্যানেলটিকে বেস রিগের সাথে চেপে ধরুন যাতে আলো বের হওয়ার জন্য কোনো ফাঁক না থাকে (চিত্র ১৭-তে দেখানো হয়েছে)। বোল্টগুলো হাত দিয়ে শক্ত করে আঁটুন।

চিত্র ২২। ট্যাবলেট মাউন্টিং প্যানেলটিকে বেস রিগের সাথে চেপে ধরা।
প্রায়শই জিজ্ঞাসিত প্রশ্নাবলী (FAQs)
টেলি রিগে দৃশ্যটি কেন ক্রপ করা হয়?

চিত্র ২৩। বেস রিগে থাকা ফোন প্লেট দ্বারা খণ্ডিত দৃশ্য।
বেস রিগ এবং টেলি এক্সটেনশনের মাঝখানে থাকা ফোন প্লেটের কারণে টেলি লেন্সের দৃষ্টিসীমা বাধাগ্রস্ত হলে এমনটা ঘটে। পরীক্ষা শুরু করার আগে একটি স্ক্রুড্রাইভার দিয়ে ফোন প্লেটটি খুলে নিতে ভুলবেন না।

চিত্র ২৪। বেস রিগ থেকে ফোন প্লেটটি অপসারণ করা।
ITS চালানোর সময় আলো কেন ম্লান দেখায় অথবা কেন লাইটিং যাচাইকরণে ত্রুটি দেখা দেয়?
এই ত্রুটিটি দেখা দেয় যখন রিগের আলো ম্লান হয়ে যায়, যা বয়স বা ব্যবহারের কারণে পাওয়ার সাপ্লাই ও এলইডি-র কার্যক্ষমতা হ্রাস, অথবা একটি ত্রুটিপূর্ণ পাওয়ার সাপ্লাইয়ের কারণে হতে পারে। এই সমস্যাটি সমাধান করতে, নিম্নলিখিত পদক্ষেপগুলি অনুসরণ করুন:
আলো ঠিকমতো কাজ করছে কিনা তা নিশ্চিত করুন:
- পাওয়ার সাপ্লাইটি পরিবর্তন করুন (ইউএল তালিকাভুক্ত ১২ ভোল্ট, ন্যূনতম ২ অ্যাম্পিয়ার)।
- এলইডি প্রতিস্থাপন করুন (আরও তথ্যের জন্য বিওএম দেখুন বা বিক্রেতার সাথে যোগাযোগ করুন)।
এলইডি লাইটগুলোর লাক্স সঠিক মাত্রায় (১০০-৩০০) আছে কিনা তা নিশ্চিত করতে, একটি ডিজিটাল মিটার ব্যবহার করে লাক্স পরীক্ষা করুন। (এই উদাহরণে কন্টেম্পো ভিউস -এর YF-1065 লাক্স মিটারটি ব্যবহার করা হয়েছে।) লাইট মিটারটি ট্যাবলেটের দিকে রাখুন এবং আলো পরিমাপ করার জন্য এটিকে ২০০০ লাক্সে সেট করুন (চিত্র ২১-এ দেখানো হয়েছে)।

চিত্র ২৫। কন্টেম্পো ভিউজ-এর সৌজন্যে ওয়াইএফ-১০৬৫।

চিত্র ২৬। ট্যাবলেট মাউন্টযুক্ত পাশ থেকে আলো পরিমাপকারী লাক্স মিটার।
পরিমাপকৃত লাক্স মানের উপর নির্ভর করে উপযুক্ত ধাপটি অনুসরণ করুন:
- আলোটি সঠিক স্তরে থাকলে, সামনের ও পেছনের প্লেটগুলো ফিতার মতো করে লাগিয়ে দিন।
- যদি আলোর মাত্রা ভুল থাকে, তাহলে এলইডি এবং পাওয়ার সাপ্লাইয়ের পার্ট নম্বর সঠিক আছে কিনা তা যাচাই করুন।
যে বিষয়গুলো খেয়াল রাখতে হবে
নিম্নলিখিতগুলি সাধারণ উৎপাদন ত্রুটির উদাহরণ, যেগুলোর কারণে পরীক্ষাগুলি ত্রুটিপূর্ণ হতে পারে।
ট্যাবলেটের ছিদ্রসহ পেছনের প্যানেলটি ছিদ্র করা হয়েছে। স্ক্রু-এর ছিদ্রগুলোর কারণে তৈরি হওয়া অতিরিক্ত বৃত্তগুলোর জন্য
find_circleটেস্টটি ব্যর্থ হয়।
চিত্র ২৭। ছিদ্র করা পিছনের প্যানেল।
ডাওয়েলগুলো নেই। এর ফলে পরিবহনের সময় লাইট ব্যাফেলগুলো পিছলে বেরিয়ে যায়।

চিত্র ২৮। লাইট ব্যাফেল থেকে ডাওয়েল অনুপস্থিত।
ইউএল-তালিকাভুক্ত নয় এমন পাওয়ার সাপ্লাই। ইউএল-তালিকাভুক্ত পাওয়ার সাপ্লাই ব্যবহার করলে লেবেলে উল্লিখিত স্পেসিফিকেশন পূরণ হয়। লাইটিং নিরাপদে চালানোর জন্য এটি গুরুত্বপূর্ণ।

চিত্র ২৯। ইউএল তালিকাভুক্ত একটি পাওয়ার সাপ্লাইয়ের উদাহরণ।
ট্যাবলেট বা ফোনের মাউন্টের স্ক্রু পিছলে যাওয়া, যা ট্যাবলেট বা ফোনের ওজন ধরে রাখতে পারে না। এটি সাধারণত থ্রেড ক্ষতিগ্রস্ত হওয়ার কারণে ঘটে এবং এটি নির্দেশ করে যে ছিদ্রটিতে পুনরায় থ্রেড করার প্রয়োজন।

চিত্র ৩০। ক্ষতিগ্রস্ত প্যাঁচযুক্ত ছিদ্র।