В состав Android входит ITS-in-a-box версии 2 — автоматизированная система тестирования камер как с широким полем зрения (WFoV), так и с обычным полем зрения (RFoV) в составе Camera Image Test Suite (ITS) . Версия 1 была разработана для тестирования камер мобильных устройств с полем зрения менее 90 градусов (RFoV).
Широкоугольный блок (версия 2) также предназначен для тестирования камер с полем зрения более 90 градусов (WFoV), что позволяет использовать одну систему ITS-in-a-box для тестирования различных камер с различными полями зрения, при условии, что камеры могут фокусироваться на расстоянии около 20 см.
Система ITS-in-a-box состоит из пластикового корпуса, вырезанного лазером по чертежам, созданным в системе автоматизированного проектирования (САПР), системы внутреннего освещения, планшета и тестируемого устройства (ИУ). Вы можете приобрести ИТС-in-a-box или собрать его самостоятельно.
Купить WFoV ITS-in-a-box
Мы рекомендуем приобрести WFoV ITS-in-a-box у одного из следующих квалифицированных поставщиков.
Байт Бридж Инк.
США: 1502 Crocker Ave, Hayward, CA 94544-7037
Китай: 22 этаж, № 06-08, Hongwell International Plaza Tower A, 1600 West Zhongshan Road, Сюйхуэй, Шанхай, 200235
www.bytebt.com
androidpartner@bytebt.com
США: +1-510-373-8899
Китай: +86-400-8866-490JFT CO LTD 捷富通科技有限公司 (ранее известная как MYWAY DESIGN)
Китай: № 40, переулок 22, Heai Road, город Уцзин, район Минхан, Шанхай, Китай.
Тайвань: 4F., № 163, Fu-Ying Road, район Синьчжуан, Нью-Тайбэй 242, Тайвань.
www.jftcoltd.com
service@jfttec.com или its.sales@jfttec.com
Китай:+86-021-64909136
Тайвань: 886-2-29089060
Видеоурок
Это видеоруководство по настройке WFoV ITS-in-a-box.
Постройте WFoV ITS-in-a-box
Вместо покупки WFoV ITS-in-a-box (версия 2) вы можете собрать свой собственный. Этот раздел содержит пошаговые инструкции по сборке WFoV ITS-in-a-box (версия 2), который позволяет тестировать камеры с широким углом обзора (более 90 градусов).
История изменений
В следующей таблице описывается история изменений установки Camera ITS WFoV и содержатся ссылки для загрузки каждой версии производственных файлов.
| Дата | Пересмотр | Загрузка производственного файла | Журнал изменений |
|---|---|---|---|
| Декабрь 2022 г. | 2.9 | WFoV Rev 2.9 |
|
| Октябрь 2019 г. | 2.8 | Нет в наличии |
|
| Октябрь 2018 г. | 2.7 | Нет в наличии |
|
| Август 2018 г. | 2.6 | Нет в наличии |
|
| Август 2018 г. | 2.5 | Нет в наличии |
|
| Июнь 2018 г. | 2.4 | Нет в наличии |
|
Механические чертежи
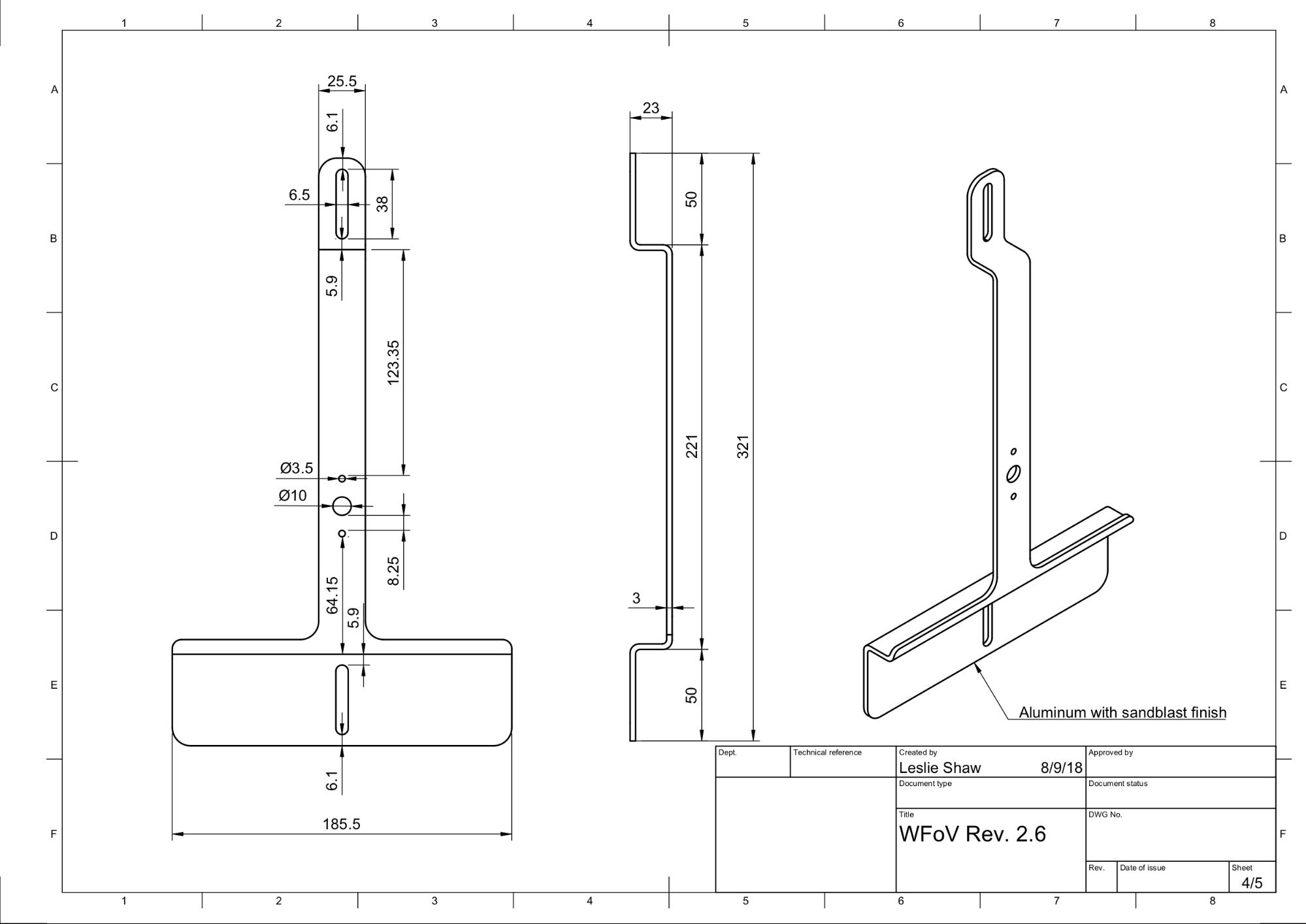
На следующем механическом чертеже WFoV ITS-in-a-box показаны необходимые материалы для сборки. Для начала работы скачайте последние производственные файлы для WFoV ITS-in-a-box .

Рисунок 1. Механический чертеж WFoV ITS-in-a-box
Приобретите фурнитуру по спецификации материалов (BOM). Вырежьте пластиковые и виниловые детали.
Необходимые инструменты
Имейте под рукой следующие инструменты:
- Крестовая отвертка
- Плоскогубцы с игольчатыми носами
- Кусачки
- Ножницы
- Бутылка с распылителем воды
- нож X-ACTO
Шаг 1: Нанесите цветной винил
Чтобы нанести цветной винил:
Наклейте цветной винил на гладкую сторону акрилонитрилбутадиенстирола (АБС) и вырежьте необходимые отверстия, как показано на рисунке 2. Обязательно наклейте белый винил с большим прямоугольным отверстием на сторону планшета, а черный винил с круглым отверстием на сторону мобильного устройства коробки.
Наклейте серый винил на боковые панели, как показано на рисунке 2, и приклейте ножки к четырем углам нижней панели, как показано на рисунке 3.
Более подробную информацию см. на wikiHow .

Рисунок 2. Детали АБС-пластика с виниловой пленкой на гладкой стороне (внутренняя часть коробки)
Прикрепите ножки к четырем углам нижней панели, как показано на рисунке 3.

Рисунок 3. Ножки на четырех углах нижней панели.
Шаг 2: Соберите и установите легкорельсовый транспорт
Для сборки и установки каркасной световой конструкции со светодиодными лентами:
Ознакомьтесь с механическим чертежом конструкции легкой рамы.

Рисунок 4. Световая рамная конструкция со светодиодными лентами
Соберите пластиковые дефлекторы, крепления для ламп, светодиодные ленты и стяжки.

Рисунок 5. Световые экраны и крепления светильников
Закрепите пластиковые дефлекторы на креплениях фонарей, как показано на рисунке 6. Они должны быть плотно прижаты.

Рисунок 6. Пластиковые светоотражатели, установленные в креплениях светильников.
Закрепите крепления фонаря на боковых панелях, как показано на рисунке 7. После завершения установки свет будет направлен в сторону передних углов внутренней части коробки.

Рисунок 7. Световые дефлекторы и крепления, защелкнутые на боковых панелях.
Соберите боковые панели. (Необязательно: отшлифуйте края перегородок для лучшей подгонки.)

Рисунок 8. Боковые панели собраны и прикручены.
Закрепите светоотражатели, вставив штифт в небольшое отверстие на прямоугольном выступе, который проходит через прорезь в боковых панелях, как показано на рисунке 9.

Рисунок 9. Крупный план вставленного штифта в крепление светодиода на внешней стороне коробки.
Оберните светодиодные ленты вокруг перегородок дважды с нижней стороны. Закрепите ленту стяжками и защёлкните концы. (Дополнительно: для облегчения обмотки используйте ленту на обратной стороне светодиодной ленты в дополнение к стяжкам.)

Рисунок 10. Светодиодная лента, обернутая вокруг перегородок с помощью стяжек.

Рисунок 11. Хомуты, удерживающие светодиодные ленты на месте.
Обрежьте концы стяжек, как показано на рисунках 12 и 13.

Рисунок 12. Светодиодные лампы дважды огибают перегородки и выходят через боковой выход.

Рисунок 13. Хомуты видны с верхней стороны (светодиодные ленты находятся с другой стороны)
Шаг 3: Соберите крепления для планшета и телефона
Чтобы собрать крепления для планшета и телефона:
Ознакомьтесь с механическим чертежом крепления планшета.

Рисунок 14. Механический чертеж крепления планшета
Соберите детали, как показано на рисунке 15.

Рисунок 15. Крепления для планшетов и телефонов с винтами, штифтами, виниловыми колпачками и гайками.
Обрежьте резиновые наконечники достаточно коротко, чтобы не мешать работе поршня (примерно пополам), и наденьте их на концы поршней. Укороченный виниловый колпачок обеспечивает лёгкое втягивание и фиксацию поршневого механизма.

Рисунок 16. Плунжеры с регулируемыми нажимными колпачками
Прикрутите плунжеры к креплениям.

Рисунок 17. Крепления для планшетов и телефонов с прикрепленными штифтами.
Шаг 4: Окончательная сборка
Чтобы собрать коробку WFoV ITS:
Соберите передние пластины отверстия и с помощью винтов 4-40 прикрутите меньшую пластину с квадратом наверху большей пластины, как показано на рисунке 18.

Рисунок 18. Передняя апертурная пластина и пластина для крепления телефона

Рисунок 19. Передняя пластина с отверстием под крепление и пластина для крепления телефона, прикрученные винтами 4-40.
Приклейте переднюю и заднюю панели к коробке.

Рисунок 20. Коробка WFoV с прикрученными друг к другу сторонами и заклеенными передней и задней панелями.
С помощью электродрели сделайте направляющие отверстия на основе имеющихся. Убедитесь, что направляющие отверстия достаточно большие для 4-40 шурупов, чтобы АБС-пластик не треснул при вкручивании шурупов.

Рисунок 21. Сверление пилотных отверстий для винтов 4-40
Прикрепите все панели друг к другу саморезами 4-40.

Рисунок 22. Винты 4-40 для сборки
Соберите детали ручки, показанные на рисунке 23.

Рисунок 23. Детали ручки
Соберите ручки, как показано на рисунке 24.

Рисунок 24. Собранная ручка
Убедитесь, что адаптер питания рассчитан на 12 В, 5 А и имеет сертификат UL. Напряжение ниже 12 В не работает. Напряжение ниже 5 А может повлиять на яркость подсветки.

Рисунок 25. Адаптер питания 12 В, 5 А с сертификатом UL
Используя цифровой люксметр, проверьте яркость светодиодных ламп, чтобы убедиться, что она находится на надлежащем уровне.
Поместите экспонометр на планшет и установите его на 2000 люкс для измерения освещённости. Значение должно быть около 100–300 люкс. Всё, что значительно ниже, будет слишком тусклым для тестов и может привести к сбоям в работе.
В данном примере используется люксметр YF-1065 компании Contempo Views .

Рисунок 26. YF-1065 от Contempo Views

Рисунок 27. Люксметр, измеряющий освещенность сбоку с креплением для планшета
Выполните соответствующий шаг в зависимости от измеренного значения люкса:
- Если свет находится на правильном уровне, прикрутите переднюю и заднюю пластины на место.
- Если уровень света неправильный, проверьте правильность номера детали светодиода и блока питания.
Закрепите крепление для телефона на пластине с отверстием, а крепление для планшета — на противоположной стороне с помощью винтов и гаек.

Рисунок 28. Крупный план крепления планшета.

Рисунок 29. Собранный корпус WFoV: вид сзади (слева) и вид спереди (справа)
Вставьте отверстие в плате Gator размером 10x10 см в соответствии с отверстием камеры проверяемого устройства.

Рисунок 30. ITS-in-a-box с установленным отверстием для аллигаторной доски
Установите телефон, совместив камеру с отверстием в корпусе. Проверьте совмещение через отверстие в корпусе планшета.

Рисунок 31. ИТС-в-коробке с одним установленным телефоном
Вырежьте отверстия для камер. Вы можете вырезать одно отверстие (для тестирования одного телефона) или два (для тестирования двух телефонов). Отверстия для фронтальной и основной камер Pixel и Pixel XL показаны на рисунке 32. Фронтальная камера имеет круглое отверстие, поскольку в ней нет вспышки и лазера, а задняя камера имеет прямоугольное отверстие, что позволяет вспышке и лазеру работать без помех.

Рисунок 32. Примеры апертур для фронтальной и тыловой камер

Рисунок 33. ИТС-в-коробке с двумя установленными телефонами
В качестве альтернативы вы можете вырезать отверстия в картоне и покрасить его в черный цвет маркерами, аэрозольной краской или акрилом, как показано на рисунке 34.

Рисунок 34. Образцы картонных отверстий для передней и задней камер.
На что следует обратить внимание
Ниже приведены примеры распространенных ошибок на производстве, которые могут сделать результаты испытаний ненадёжными.
Задняя панель с отверстиями для планшета. Это приводит к провалу теста
find_circleиз-за дополнительных кругов, создаваемых отверстиями для винтов.
Рисунок 35. Задняя панель с пробитыми отверстиями.
Отсутствуют штифты. Из-за этого защитные экраны выпадают во время транспортировки.

Рисунок 36. Отсутствует штифт на светоотражающей перегородке.
Источник питания, не сертифицированный UL. Использование источника питания, сертифицированного UL, соответствует заявленным характеристикам. Это важно для безопасной эксплуатации освещения.

Рисунок 37. Пример источника питания, сертифицированного UL
Проскальзывание винтов на держателе планшета или телефона, которые не выдерживают вес планшета или телефона. Обычно это вызвано повреждением резьбы и указывает на необходимость перерезки резьбы в отверстии.

Рисунок 38. Отверстие с поврежденной резьбой.