Buy and set up a modular rig system

The modular rig system supports ITS test automation and consists of a plastic box that is Computerized Numerical Control (CNC) cut from computer-aided design (CAD) drawings, a chart tablet, and a device under test (DUT). The modular rig system consists of a base rig and an optional tele extension rig. The modular base rig has a chart distance of 22 cm and can test mobile device cameras with a FoV of 60 degrees to 120 degrees. The base rig can perform testing rotated 90 degrees with the DUT on top (shown in Figure 2).

The tele extension rig supports testing cameras that have a long minimum focus distance (telephoto cameras). The tele extension rig is bolted onto the base rig and the length can be customized based on your camera testing requirements when purchasing through the qualified vendors. Camera ITS supports chart distances of up to 100cm. There are two types of tele extension rigs, the flexi-tele rig and the fixed-length tele rig. The flexi-tele rig lets you test with various chart distances while the fixed-length rig only lets you test with a single chart distance. The flexi-tele rig is available beginning March 2026.

Modular Base
Rev1.2

Figure 1. Modular base rig.

Modular rev1.2
90deg

Figure 2. Modular base rig rotated 90 degrees.

Flexi-Tele
rig

Figure 3. Flexi-Tele extension rigs from our two approved vendors.

Revision history

The following table describes the revision history of the modular rig system and includes download links to each version of the production files.

Date Revision Production file download Change log
September 2024 1.2 Modular base rig rev1.2
  • (September 2024) Includes fixes for a production file error
  • (July 2024) Initial release

Purchase a modular rig system

We recommend purchasing the modular rig system, optional tele extension rig, and accessories from one of the following qualified vendors.

  • Byte Bridge Inc.
    USA: 1502 Crocker Ave, Hayward, CA 94544-7037
    China: 22F #06-08, Hongwell International Plaza Tower A, 1600 West Zhongshan Road, Xuhui, Shanghai, 200235
    www.bytebt.com
    androidpartner@bytebt.com
    USA: +1-510-373-8899
    China: +86-400-8866-490

  • JFT CO LTD 捷富通科技有限公司 (previously known as MYWAY DESIGN)
    China: No. 40, Lane 22, Heai Road, Wujing Town, Minhang District, Shanghai, China
    Taiwan: 4F., No. 163, Fu-Ying Road, XinZhuang District, New Taipei City 242, Taiwan
    www.jftcoltd.com
    service@jfttec.com or its.sales@jfttec.com
    China:+86-021-64909136
    Taiwan: 886-2-29089060

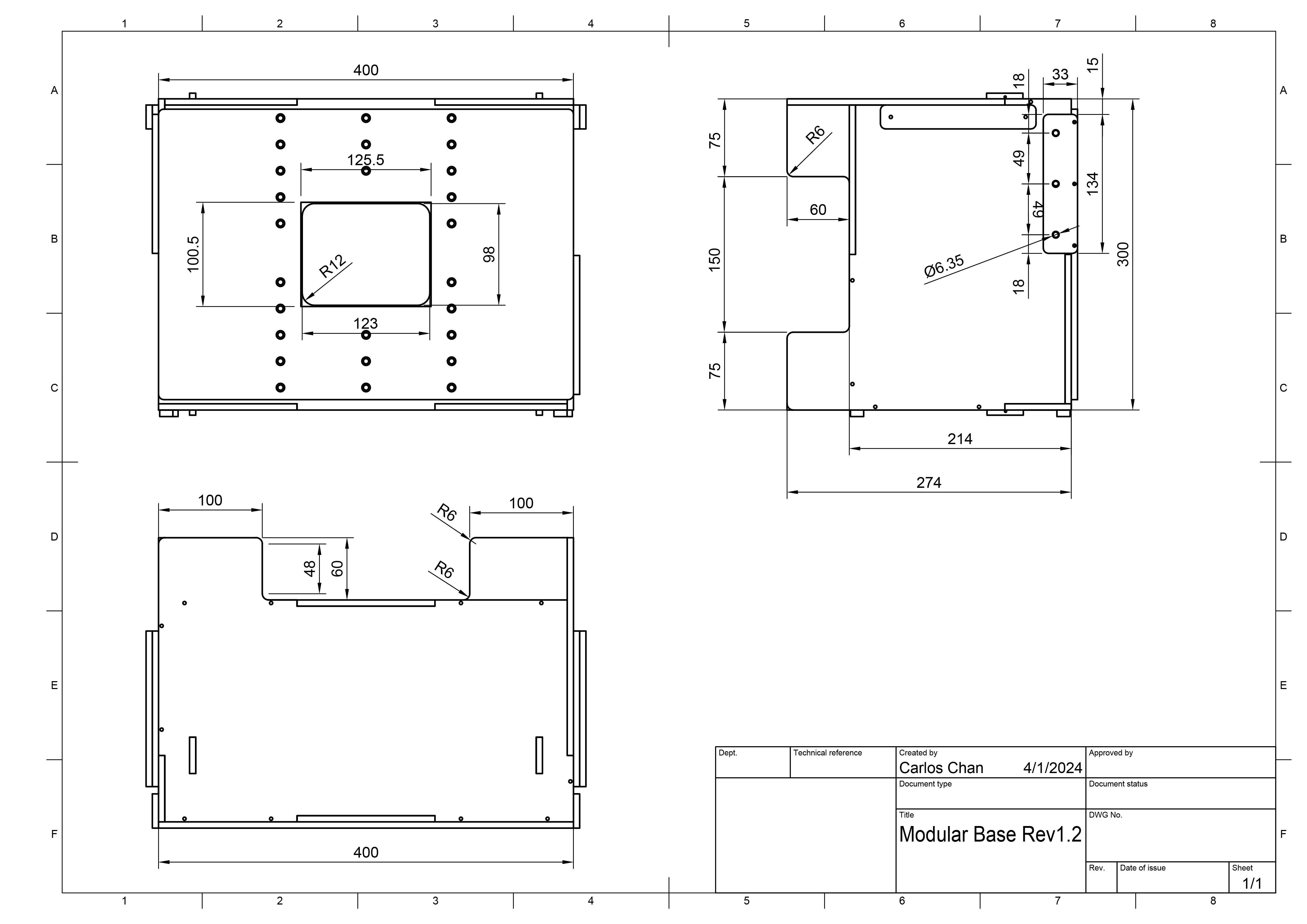
Mechanical drawings

The following is a mechanical drawing of the modular base rig.

CAD drawing of Modular
Base

Figure 4. Mechanical drawing of modular base rig

Base rig setup

Follow these steps to set up a modular base rig.

  1. Purchase a modular rig system from a qualified vendor.

  2. Make sure you have all the components in the following table (items shown in Figure 4).

    Component Quantity
    Modular base rig 1
    Phone mount bracket 2
    Tablet mount bracket 1
    12V power supply (UL listed, 1A minimum) 1
    Aperture 1

    Modular Base Rev1.2
Items

    Figure 5. Modular base rig components.

  3. Depending on your setup, make sure you have the necessary accessories in the following table (shown in Figure 5). These accessories can be purchased from a qualified vendor.

    Item Quantity
    Lighting controller (can control up to 3 rigs) 1
    5v power supply for lighting controller 1
    DC barrel cable connecting lighting to modular base rig 1
    DC barrel cable adaptor (5.5mm x 2.1mm to 3.5mm x 1.35mm) 1
    USB A cable to USB cable 1
    Foldable kit (if DUT is a foldable device) 1

    Modular Optional
Items

    Figure 6. Optional items for modular base rig.

  4. Ensure there are no light leakages by doing one of the following:

    1. Fabricate an aperture to fit the camera module of the DUT and ensure there are no light leakages (as shown in Figure 6). Apertures can be cut from the foam boards provided or configured from by a qualified vendor. For proper figure orientation, DUTs with the rear camera facing the rig are rotated 90° counterclockwise and DUTs with the front camera facing the rig are rotated 90° clockwise. Make sure apertures are configured accordingly.

    Modular Aperture
    Positioning Modular Aperture
    Cutting

    Figure 7. Fabricate apertures to prevent light leakage.

    1. Use a dark drape to cover the rig to prevent light leakage, no apertures required. (shown in Figure 7).

    Modular Drapery

    Figure 8. Preventing light leakage using a drape.

  5. Install a standard phone mount or a foldable phone mount onto the front phone mounting panel at an appropriate height using a nylon bolt and nut as shown in Figure 8.

    Modular Aperture and Mount
Install

    Figure 9. Aperture and phone mount installation.

  6. Install the tablet mount onto the tablet mounting panel at an appropriate height using a nylon bolt and nut.

  7. Mount the display tablet and connect the tablet to the host as shown in Figure 9. Secure the tablet with a plunger.

    Modular Tablet
Install

    Figure 10. Tablet installation.

  8. To make on-screen operation easier, set up your DUT before mounting the DUT.

  9. Mount the DUT and connect to host.

  10. Align the DUT so that the center of the camera module is aligned with (or very close to) the center of the tablet. To adjust the height, loosen the phone mounting bolts and slide the mount upwards or downwards. When aligned, secure the DUT with the mount plunger.

    Modular DUT
Install

    Figure 11. DUT installation.

  11. For lighting, connect the lighting cable from the base rig to one of the following:

    1. 12V power supply

    Modular 12V
    connection

    Figure 12. Light connected to 12V power supply.

    1. Lighting controller (adaptor might be needed)

    Modular controller
    connection

    Figure 13. Light connected to lighting controller.

When you have completed the setup for the modular base rig, set up the host and test environment (Set up CTS). For the config.yml file, use the following configuration:

  • chart\_distance = 22
  • lighting\_ch = [connected controller channel], or leave as is if not using a lighting controller.

Flexi-Tele extension rig setup

If you purchased the modular base rig before March 2026, you might need to perform a small retrofitting to work with the flexi-tele extension. This modification fixes the problem of front-plate blocking the field of view of the DUT's tele camera and can also be used with the fixed-length tele extension rig.

Follow these steps to retrofit the modular base rig.

  1. Remove the four screws on the top of the rig holding the front plate, as well as the bottom four screws.

    Modular Retrofit Remove
Screws

    Figure 14. Screws on the rig holding the front plate.

  2. (Optional) Bolt or glue the phone-mounting plate to the front-plate such that the plates come off together.

    Modular Retrofit bolt
plates

    Figure 15. Bolts for the phone-mounting plate and front plate.

  3. (Optional) If your rig has a bottom-to-top light power cable attached to the front-plate, relocate it to the side with electrical tape or zip-tie brackets.

    Modular Retrofit relocate
cable

    Figure 16. Bottom-to-top light power cable relocated to the side.

  4. Connect the modular base rig to the flexi-tele extension rig.

Video demo

This is a video demonstration of how to set up the flexi-tele extension rig:

Fixed-length tele extension rig setup

Follow these steps to set up the optional tele extension rig.

  1. Purchase the modular base rig and tele extension rig with a qualified vendor. The rig can be built using the production files but this isn't recommended because cutting and assembly must be accurate to ensure the extension rig has no fit issues.

  2. Make sure you have a working modular base rig and a tele extension rig (as shown in Figure 13).

    Modular tele

    Figure 17. Modular base rig with tele extension.

  3. Remove the phone mounting panel by removing 6x nylon bolts by hand (3 on each side).

    Modular bolt
highlight Modular bolt
removal Modular front plate
off

    Figure 18. Removing 6 nylon bolts in the highlighted area by hand.

  4. Place the base rig and the tele extension rig on the surface where the tests are performed. To avoid stress to the mounting points, we don't recommend moving the assembled rig.

  5. Place the extension rig in place so that the 6 slots on the extension rig tab aligns with the 6 holes on the base rig.

    Modular aligning
tab

    Figure 19. Aligning slots with holes.

  6. Attach the extension rig to the base rig by installing the 6 bolts. While installing the screws, gently push the 2 rigs together to ensure there are no gaps for light leakages (ask colleague for help as necessary). Hand tighten the bolts.

    Modular push
together

    Figure 20. Attaching base and extension rigs.

  7. Configure the aperture (or drapery) and install phone mounts and DUTs as described in Base rig setup.

    Modular aligning
tab

    Figure 21. Attaching phone mounts and DUT.

When you have completed the setup for the extension rig, set up the host and test environment (Set up CTS). For the config.yml file, use the following configuration:

  • chart_distance = [total distance from DUT to tablet]
  • lighting_ch = [connected control channel], or leave as is if not not using a lighting controller.

Uninstall the extension rig

To uninstall the extension rig, follow the installation steps in reverse. When installing the tablet mounting panel, push the panel against the base rig to ensure there are no gaps for light leakages (as shown in Figure 17). Hand tighten the bolts.

Modular push
together

Figure 22. Pushing tablet mounting panel against the base rig.

Frequently asked questions (FAQs)

Why is the scene cropped in a tele rig?

Modular rig
crop

Figure 23. Scene cropped by phone plate in base rig.

This happens when a tele lens' field of view is blocked by the phone plate between the base rig and the tele extension. Make sure you take off the phone plate with a screwdriver before proceeding with testing.

Modular phone plate
removed

Figure 24. Removing the phone plate in the base rig.

Why do the lights appear dim or why does a validate lighting error appear when running ITS?

This error is triggered when the lighting in the rig becomes dimmer, which can be caused because of power supply and LED degradation due to age or usage, or a faulty power supply. To resolve this issue, follow these steps:

  1. Make sure the lighting is working properly:

    • Replace the power supply (UL listed 12 volts, min 2 amps).
    • Replace LED (refer to the BOM or contact the vendor for more information).
  2. To make sure the lux of the LED lights are at the appropriate level (100–300), test the lux using a digital meter. (The YF-1065 lux meter by Contempo Views is used in this example.) Place the light meter on the tablet side and turn it to 2000 lux to measure the light (shown in Figure 21).

    YF-1065 by Contempo Views

    Figure 25. YF-1065 by Contempo Views.

    Lux meter

    Figure 26. Lux meter measuring light from the side with the tablet mount.

  3. Depending on the lux value measured, follow the appropriate step:

    • If the light is at the correct level, screw the front and back plates into lace.
    • If the light is at the incorrect level, check that the LED and power supply part number are correct.

Things to look out for

The following are examples of common manufacturing errors that can render tests flakey.

  • Back panel with tablet holes poked through. This causes the find_circle test to fail because of the extra circles created by the screw holes.

    Back panel with holes

    Figure 27. Back panel with holes poked through.

  • Missing dowels. This causes the light baffles to slip out during shipping.

    Missing dowel

    Figure 28. Missing dowel on light baffle.

  • Non-UL-listed power supply. Using a UL listed power supply meets the labeled specifications. This is important for operating the lighting safely.

    UL-listed power supply

    Figure 29. Example of a UL listed power supply.

  • Slipping screws on the tablet or phone mount that can't support the weight of a tablet or phone. This is usually caused by damaged threads and indicates that the hole needs to be rethreaded.

    Hole with damaged threads

    Figure 30. Hole with damaged threads.