جعبهی ITS با میدان دید (RFoV) معمولی (نسخهی ۱a) شامل یک جعبهی پلاستیکی است که با لیزر از نقشههای طراحی به کمک کامپیوتر (CAD) برش داده شده است، یک تبلت نمودار و یک دستگاه تحت آزمایش (DUT). جعبهی ITS با میدان دید کمتر از ۹۰ درجه (RFoV) برای آزمایش دستگاههایی با میدان دید کمتر از ۹۰ درجه (RFoV) طراحی شده است. میتوانید یک جعبهی ITS را خریداری کنید یا خودتان بسازید.
نسخه rev1b از RFOV ITS-in-a-box از قطعات ماژولار پشتیبانی میکند و با دکل تله اکستنشن سازگار است.

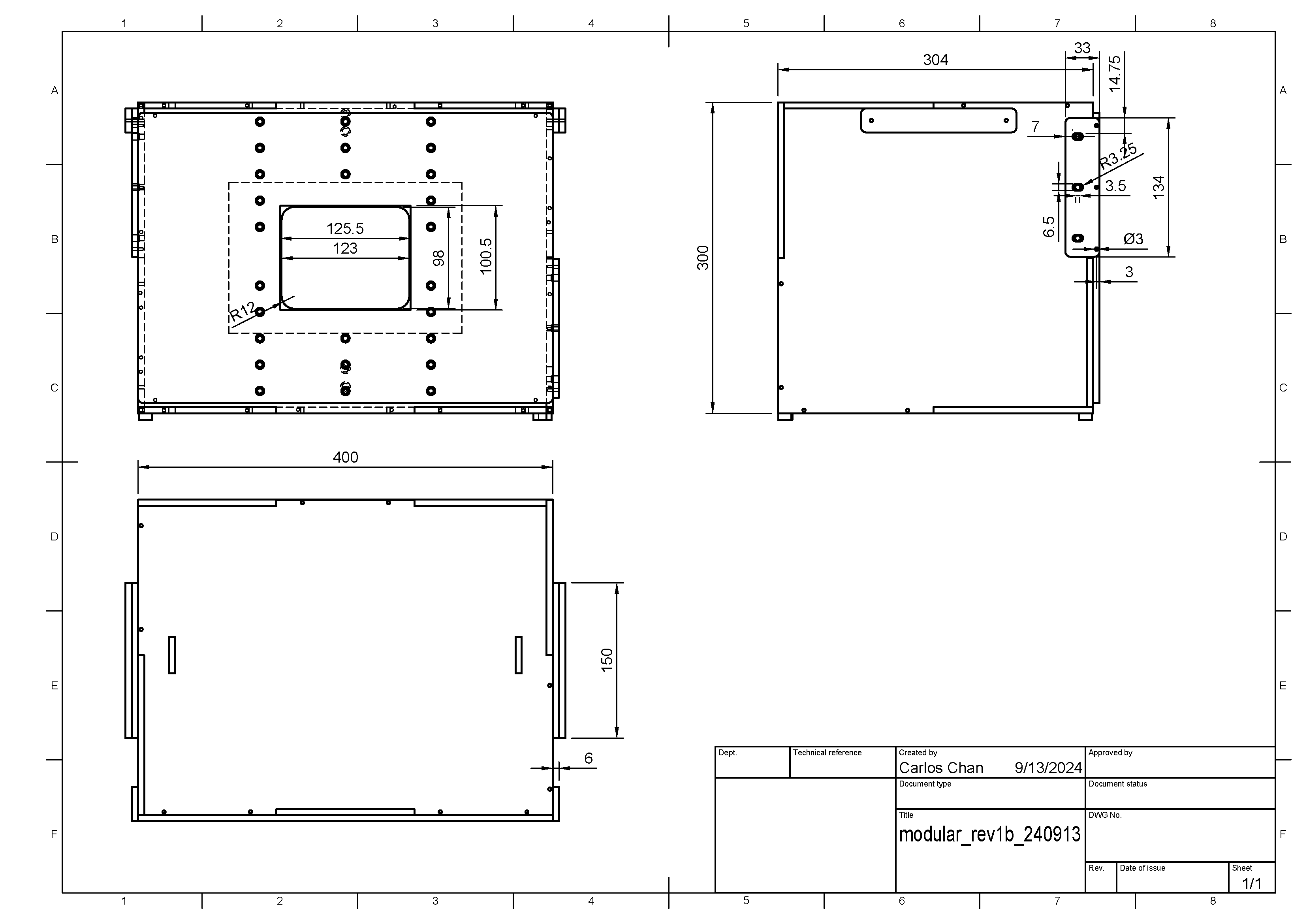
شکل ۱. جعبه ITS با میدان دید منظم (RFoV) نسخه ۱b
تاریخچه ویرایشها
جدول زیر تاریخچهی ویرایشهای کادر میدان دید معمولی را شرح میدهد و شامل لینکهای دانلود هر نسخه از فایلهای تولیدی است.
| تاریخ | بازنگری | دانلود فایل تولیدی | گزارش تغییرات |
|---|---|---|---|
| سپتامبر ۲۰۲۴ | ۱ب | فایلهای تولید نسخه ۱ب |
|
| مه ۲۰۱۹ | ۱ الف | فایلهای تولید نسخه ۱a |
|
یک دستگاه RFoV ITS-in-a-box خریداری کنید
توصیه میکنیم یک دستگاه RFoV ITS-in-a-box (نسخه 1a) را از یکی از فروشندگان واجد شرایط زیر خریداری کنید.
شرکت بایت بریج
ایالات متحده آمریکا: خیابان کراکر ۱۵۰۲، هیوارد، کالیفرنیا ۹۴۵۴۴-۷۰۳۷
چین: ۲۲F #۰۶-۰۸، برج A میدان بینالمللی هونگول، ۱۶۰۰ جاده غربی ژونگشان، شوهویی، شانگهای، کد پستی ۲۰۰۲۳۵
www.bytebt.com
androidpartner@bytebt.com
ایالات متحده آمریکا: +1-510-373-8899
چین: +86-400-8866-490JFT CO LTD 捷富通科技有限公司 (قبلاً با نام MYWAY DESIGN شناخته می شد)
پلاک 40، لین 22، جاده هیی، شهر ووجینگ، منطقه مینهنگ، شانگهای، چین
4F.، شماره 163، جاده فو-یینگ، منطقه XinZhuang، شهر جدید تایپه 242، تایوان
www.jftcoltd.com
service@jfttec.com یا its.sales@jfttec.com
چین: +86-021-64909136
تایوان: 886-2-29089060
آموزش ویدیویی
این یک آموزش ویدیویی در مورد نحوه راهاندازی سیستم RFoV ITS-in-a-box است.
یک سیستم ITS در جعبه RFoV بسازید
به جای خرید یک سیستم ITS RFoV در جعبه، میتوانید خودتان آن را بسازید. این بخش دستورالعملهای دقیقی برای مونتاژ ارائه میدهد.
نقشههای مکانیکی
جعبه ITS شامل یک DUT، یک تبلت نمودار، یک سیستم روشنایی داخلی و یک جعبه پلاستیکی است که با لیزر از روی نقشههای CAD برش داده شده است (در شکل 1 نشان داده شده است).
برای شروع، آخرین فایل تولید را دانلود کنید.

شکل ۲. نقشه مکانیکی ITS-in-a-box
یراقآلات را از لیست مواد (BOM) خریداری کنید. قطعات پلاستیکی و وینیل را برش دهید.
ابزارهای مورد نیاز
ابزارهای زیر را در دسترس داشته باشید:
- پیچ گوشتی سر تورکس
- مته برقی
- چسب ABS
- انبردست نوک سوزنی
- چاقوی X-ACTO
- سیم چین یا قیچی (اختیاری)
مرحله 1: پایههای وینیل و چسب را اعمال کنید
وینیل رنگی را روی قسمت صاف آکریلونیتریل بوتادین استایرن (ABS) بمالید و دهانههای لازم را همانطور که در شکلهای ۳ و ۴ نشان داده شده است، برش دهید. وینیل سفید را با دهانه مستطیلی بزرگ در سمت تبلت جعبه و وینیل سیاه را با دهانه دایرهای در سمت دستگاه همراه جعبه قرار دهید. وینیل خاکستری را همانطور که در شکل ۴ نشان داده شده است، روی پنلهای کناری قرار دهید و پایهها را همانطور که در شکل ۵ نشان داده شده است، در چهار گوشه پنل پایینی بچسبانید. برای اطلاعات بیشتر، به wikiHow مراجعه کنید.

شکل ۳. وینیل مشکی روی پنل جلویی (چپ) و وینیل سفید روی پنل پشتی (راست)

شکل ۴. وینیل خاکستری روی پنلهای کناری

شکل ۵. پایهها در چهار گوشه پنل پایینی
مرحله ۲: نورپردازی
برای مونتاژ قطعه روشنایی ITS-in-a-box:
سختافزار روشنایی را مطابق شکل ۶ آماده کنید.

شکل ۶. قطعات مونتاژ سبک
سختافزار شامل میلههای نور LED، محافظهای نور پلاستیکی، پایههای نور پلاستیکی، گیرههای نور پلاستیکی یا فلزی موجود در کیت روشنایی LED و چهار پیچ ۶-۳۲ با مهرههای سر بلوطی است.
گیرههای چراغ را همانطور که در شکل ۷ نشان داده شده است به دیوارههای پلاستیکی پیچ کنید. گیرهها را با استفاده از مهرههای بلوطی در طرف دیگر دیوارهها محکم کنید.

شکل ۷. بافلهای پلاستیکی با گیرههای نوری متصل
برای مونتاژ چراغها، با استفاده از گیرههای چراغ، محافظهای پلاستیکی را به پشت میلههای چراغ LED وصل کنید.

شکل ۸. میلههای چراغ با چراغهای رو به پایین و پیچهای رزوه شده از طریق گیرهها
وقتی قطعه روشنایی مونتاژ شد، میلههای نور LED باید به سمت پایین باشند و تیغههای پلاستیکی باید سطح براق و بازتابنده پشت میله نور LED را بپوشانند.
مرحله ۳: پایههای گوشی
برای مونتاژ پایههای گوشی:
وسایل مورد نیاز را مطابق شکل 9 جمع آوری کنید.

شکل 9. اقلام نگهدارنده گوشی
این سختافزار شامل دو پایه فلزی تلفن، دو پیستون، دو سر لاستیکی، چهار پیچ سر تخت 8-32 و مهرههای مربوطه است.
نوکهای لاستیکی را به اندازهای کوتاه کنید که در عملکرد پیستون اختلال ایجاد نکند (تقریباً از وسط نصف کنید)، سپس نوکهای لاستیکی را طوری قرار دهید که نوک پیستونها را بپوشاند.

شکل 10. پیستونهایی با نوک لاستیکی
پایههای تلفن را با استفاده از پیچهای سرپهن مونتاژ کنید تا مکانیزمهای پیستون به پایههای فلزی متصل شوند. مطمئن شوید که پیچها با مهرههای مربوطه سفت شدهاند.

شکل ۱۱. پایههای تلفن مونتاژ شده
مرحله ۴: صفحه دیافراگم
برای مونتاژ صفحه دیافراگم جلویی:
سختافزار صفحه دیافراگم جلویی که در شکل ۱۲ نشان داده شده است را جمع کنید.

شکل ۱۲. قطعات مجموعه صفحه دیافراگم جلو
سختافزار شامل پایههای مونتاژ شده گوشی، پنل پایه گوشی، چهار پیچ نایلونی کوتاه و چهار مهره نایلونی (که برای جلوگیری از بیرون زدن پیچها از پشت صفحه پلاستیکی لازم است) میشود.
با استفاده از پیچ و مهره، پایههای تلفن مونتاژ شده را به پنل پایه تلفن محکم کنید. مطمئن شوید که پایههای تلفن در جهت صحیح قرار دارند، همانطور که در شکل ۱۳ نشان داده شده است.

شکل ۱۳. صفحه دیافراگم جلویی مونتاژ شده
مرحله 5: پایه تبلت
برای مونتاژ پایه رومیزی:
سختافزار مونتاژ پایه تبلت که در شکل ۱۴ نشان داده شده است را آماده کنید.

شکل ۱۴. قطعات مونتاژ فضای نصب تبلت
سختافزار شامل پنل پشتی، پایه تبلت، یک پیستون، یک نوک لاستیکی، دو پیچ پن-هد 8-32، دو پیچ نایلونی کوتاه و مهرههای مربوطه است.
پایه تبلت را با استفاده از پیچهای سرپهن برای اتصال مکانیزمهای پیستون به پایه فلزی مونتاژ کنید. مطمئن شوید که پیچها با مهرههای مربوطه محکم شدهاند.
با استفاده از پیچ و مهره، پایه تبلت مونتاژ شده را به پنل پشتی محکم کنید. مطمئن شوید که پایههای گوشی در جهت صحیح قرار دارند، همانطور که در شکل ۱۵ نشان داده شده است.

شکل ۱۵. پایه تبلت مونتاژ شده
مرحله ششم: نصب چراغها
برای نصب چراغها:
همانطور که در شکل ۱۶ نشان داده شده است، حبابهای نور را روی پنلهای بالا و پایین نصب کنید.

شکل ۱۶. موانع نوری نصب شده روی پنلهای بالا و پایین
با فشردن پین در سوراخ کوچک روی زبانه مستطیلی که از طریق شکاف در پنل بالا و پایین امتداد مییابد، مطابق شکل ۱۷، حبابهای نور را محکم کنید.

شکل ۱۷. نمای نزدیک از پین قرار داده شده در زبانه نصب LED در قسمت بیرونی جعبه
برای محکم کردن پینها، به آرامی پینها را فشار دهید تا زمانی که هنگام محکم شدن پینها در جای خود، فشاری روی پلاستیک احساس کنید.

شکل ۱۸. انبردستهای مورد استفاده برای نصب پین
پنلهای جلویی و کناری را در جهت صحیح مطابق شکل ۱۹ مونتاژ کنید و آنها را از قسمت بیرونی با نوار چسب به هم بچسبانید.

شکل ۱۹. جهت قرارگیری نور
سیم برق را مطابق شکل 20 به میله چراغ برق وصل کنید.

شکل 20. سیم برق روشنایی
سیم برق را از سوراخ روی پنل سمت چپ رد کنید. سیم برق در هر انتها کانکتورهای مختلفی دارد: کانکتور باریکتر به نوار چراغ LED و کانکتور بزرگتر به آداپتور برق متصل میشود.

شکل ۲۱. سیم برق که از سمت چپ دستگاه آزمایش خارج میشود
چراغهای بالا را به چراغهای پایین سیمکشی کنید و کابل را روی پنل سمت چپ محکم کنید.

شکل ۲۲. سیم چراغ که به پنل سمت چپ متصل شده است
مرحله ۷: پنلهای جانبی، پایه تبلت و دستهها را مونتاژ کنید
برای مونتاژ پنلهای جانبی ITS-in-a-box، پایه تبلت و دستهها با پیچ:
تمام کنارههای پنلها را جمع کنید و مطابق شکل ۲۳، آنها را با نوار چسب به هم بچسبانید.

شکل ۲۳. قطعات ITS که برای مونتاژ به هم چسبانده شدهاند
با استفاده از یک دریل برقی، بر اساس سوراخهای موجود، سوراخهای راهنما ایجاد کنید. مطمئن شوید که سوراخهای راهنما برای ۴ تا ۴۰ پیچ به اندازه کافی بزرگ هستند تا پلاستیک ABS هنگام قرار دادن پیچها ترک نخورد.

شکل ۲۴. سوراخهای راهنما برای پیچهای ۴-۴۰
تمام پنلها را با استفاده از پیچهای خودکار 4-40 به هم پیچ کنید.

شکل ۲۵. پیچهای ۴-۴۰ برای مونتاژ پنلها
قطعات دسته نشان داده شده در شکل ۲۶ را جمع کنید.

شکل ۲۶. قطعات دسته
قطعات سختافزاری شامل چهار قطعه پلاستیکی مستطیلی و چهار پیچ ۶-۳۲ است.
دستهها را مطابق شکل ۲۷ مونتاژ کنید.

شکل ۲۷. دسته مونتاژ شده
مرحله ۸: مونتاژ و راه اندازی نهایی
برای انجام مونتاژ نهایی ITS-in-a-box:
پایه تبلت را به پنل پشتی وصل کنید و ارتفاع آن را با توجه به اندازه تبلت تنظیم کنید.

شکل ۲۸. تبلت در پایه تبلت در پشت جعبه
پنل دیافراگم مربعی بدون پایههای گوشی را با پیچهای ۴-۴۰ همانطور که در شکل ۲۹ نشان داده شده است، به جلوی جعبه وصل کنید.

شکل ۲۹. پنل جلویی تلفن مونتاژ شده
روزنه برد گیتور 10x10 سانتیمتری را طوری قرار دهید که با روزنه دوربین DUT متناسب باشد.

شکل 30. ITS-in-a-box با روزنه تخته گیتور نصب شده
گوشی را با تراز کردن دوربین با دهانه دیافراگم نصب کنید. تراز بودن آن را از طریق دهانه تبلت بررسی کنید.

شکل ۳۱. سامانه ITS درون جعبه با یک تلفن نصب شده
دیافراگم دوربینها را برش دهید. میتوانید یک دیافراگم (برای آزمایش یک گوشی) یا دو دیافراگم (برای آزمایش دو گوشی) برش دهید. دیافراگم دوربینهای جلو و عقب Pixel و Pixel XL در شکل ۳۱ نشان داده شده است. دوربین جلو به دلیل عدم وجود فلش یا لیزر، دیافراگم دایرهای دارد، در حالی که دوربین عقب دارای دیافراگم مستطیلی است که به فلش و لیزر اجازه میدهد بدون مسدود شدن کار کنند.

شکل ۳۲. نمونه دیافراگم برای دوربینهای جلو و عقب

از طرف دیگر، میتوانید روزنههایی را از مقوا برش دهید و با استفاده از ماژیک، اسپری رنگ یا اکریلیک، همانطور که در شکل ۳۳ نشان داده شده است، آن را سیاه کنید.
شکل ۳۳. نمونه دیافراگمهای مقوایی برای دوربینهای جلو و عقب

با استفاده از یک تستر لوکس دیجیتال، لوکس چراغهای LED را آزمایش کنید. در این مثال از YF-1065 ساخت Contempo View استفاده شده است.

شکل ۳۴. YF-1065 از شرکت کانتمپو ویوز
نورسنج را روی سمت تبلت قرار دهید و آن را روی ۲۰۰۰ لوکس تنظیم کنید تا نور اندازهگیری شود. سطح لوکس باید حدود ۱۰۰ تا ۳۰۰ لوکس باشد. هر مقدار قابل توجهی پایینتر، برای آزمایش خیلی کم نور است و میتواند منجر به عدم موفقیت در آزمایش شود.

شکل ۳۵. لوکس متر برای اندازهگیری نور از پشت با پایه تبلت
بسته به مقدار لوکس اندازهگیری شده، مرحله مناسب را دنبال کنید:
- اگر نور در سطح صحیح قرار دارد، صفحات جلو و عقب را در جای خود پیچ کنید.
- اگر نور در سطح نادرستی است، بررسی کنید که شماره قطعه LED و منبع تغذیه صحیح باشند.
مواردی که باید به آنها توجه کرد
در ادامه نمونههایی از خطاهای رایج در تولید که میتوانند نتایج آزمایشها را با مشکل مواجه کنند، آورده شده است.
پنل پشتی با سوراخهای تبلت که از میان آنها بیرون زده است. این باعث میشود که تست
find_circleبه دلیل دایرههای اضافی ایجاد شده توسط سوراخهای پیچ، با شکست مواجه شود.
شکل ۳۶. پنل پشتی با سوراخهایی که از میان آن عبور کردهاند
رولپلاکهای گمشده. این باعث میشود که حبابهای نور هنگام حملونقل از جای خود خارج شوند.

شکل ۳۷. میلهی رابط روی دیوارکوب چراغ گم شده است
منبع تغذیهای که در فهرست UL نیست. استفاده از منبع تغذیهای که در فهرست UL قرار دارد، تضمین میکند که منبع تغذیه خراب نمیشود.

شکل ۳۸. نمونهای از منبع تغذیه دارای مجوز UL